969 South Shore Terrace, Chestermere, Alberta T1X 0B4

Listed for:
$1,249,000
4 beds
3 baths
Listed 64 days ago
House for rent: 969 South Shore Terrace, Chestermere, Alberta T1X 0B4

View all 10 photos

About

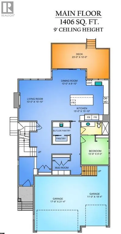
Award-winning Alliston at Home presents an exceptional estate home in the prestigious lakeside community of South Shore in Chestermere. This elegant residence features shy of 2900 sq. ft. of beautifully designed living space, offering 4 bedrooms, 3 full bathrooms, and a separate entrance to the basement, ready for your design ideas. This Home offers space for the whole family to grow and is located just steps from the lake. Step inside to airy 9' ceilings and engineered hardwood floors that span the expansive main floor. The showstopper kitchen is complemented by upgraded floor-to-ceiling two-tone cabinetry, an extensive island with quartz countertops, sleek stainless-steel appliances with a gas range, and a butler's pantry offering additional prep space. The open-concept dining room and living room are perfect for entertaining, and the living room features a striking floor-to-ceiling fireplace. The main-floor bedroom is perfect for multigenerational living, with a full bathroom and an oversized walk-in shower. The mudroom off the triple-attached garage is a great space for all the kids' odds and ends and keeps life organized. Step outside to the impressive 23' deck, perfect for outdoor dining, summer gatherings, or relaxing evenings. Upstairs, the Home offers a thoughtfully designed retreat for the entire family. The primary suite is a private sanctuary featuring a large walk-in closet and a luxurious 5-piece spa-inspired ensuite with a soaker tub and oversized walk-in shower. Two additional bedrooms with walk-in closets, another full 5-piece bathroom with dual sinks, make kids' bedtime a breeze; the upper laundry adds convenience; and a generous family/bonus room provides space for both relaxation and everyday living. The unfinished basement with 9' ceilings and a separate entrance is ready for your design ideas. Located in the highly sought-after South Shore community, this Home offers easy access to Chestermere Lake, scenic walking paths, parks, schools, and con venient commuting to Calgary. (id:27476)

Property Highlights

MLS® Number
A2292767
Type
Single Family
Community Name
South Shores
Ownership Type
Freehold
Land Size
512.57 m2|4,051 - 7,250 sqft
Parking Space Total
6

Building

Building Type
House
Storeys
2.00
Square Footage
2886 sqft
Bathrooms Total
3
Bedrooms Above Ground
4
Bedrooms Total
4
Amenities
Park, Playground, Shopping, Water Nearby
Fireplace Present
Yes
Basement Type
Full (Unfinished)
Basement Features
Separate entrance
Building Heating Type
Forced air
Heating Fuel
Building Cooling Type
None

Location

Learn more about this property
Listing provided by:
LPT Realty
MLS® number:
A2292767
Agent:
Lindsay Bosma
*Indicates required field
Name is required
Email is required
Please enter a valid phone number (e.g., 416-111-1111).

Street Spotlight - For sale