18 Waterford Mews, Chestermere, Alberta T1X 3B4

Listed for:
$609,900
5 beds
3 baths
Listed 53 days ago
Duplex for rent: 18 Waterford Mews, Chestermere, Alberta T1X 3B4

View all 4 photos

About

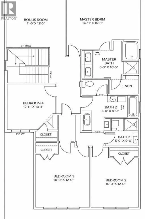
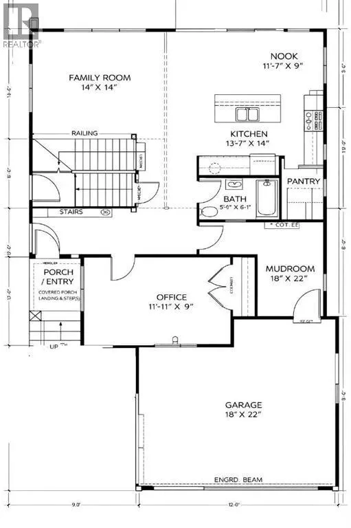
Welcome to the brand new community of Waterford! This amazing Semi-Detached Front-Drive Garage Duplex is great at a fantastic price point! The main level features a front porch entrance, a Full bathroom with a shower and a Bedroom on the main floor with a closet, chic kitchen with a walk-through pantry, a family room and cozy nook. The Upper floor features a nice size primary bedroom with a walk-in closet and 4-piece ensuite including double vanity, a Bonus room and laundry plus 3 additional bedrooms! The basement is ready for your development and has a Separate entrance! Possession will be June 2026. Call to book your private showing today! (id:27476)

Property Highlights

MLS® Number
A2295887
Type
Single Family
Community Name
Waterford
Ownership Type
Freehold
Land Size
311.86 m2|0-4,050 sqft
Parking Space Total
2

Building

Building Type
Duplex
Storeys
2.00
Square Footage
2090 sqft
Bathrooms Total
3
Bedrooms Above Ground
5
Bedrooms Total
5
Amenities
Shopping
Fireplace Present
Yes
Basement Type
Full (Unfinished)
Basement Features
Separate entrance
Building Heating Type
Forced air
Heating Fuel
Building Cooling Type
None

Location

Learn more about this property
Listing provided by:
eXp Realty
MLS® number:
A2295887
Agent:
Paul Dhanjal
*Indicates required field
Name is required
Email is required
Please enter a valid phone number (e.g., 416-111-1111).

Street Spotlight - For sale