9543 114 Avenue, Clairmont, Alberta T8X 0W7

Listed for:
$599,900
6 beds
4 baths
Listed 59 days ago
9543 114 Avenue, Clairmont, Alberta T8X 0W7

View all 16 photos

Learn more about this property
Listing provided by:
Sutton Group Grande Prairie Professionals
MLS® number:
A2242759
Agent:
Daniel Cram
*Indicates required field
Name is required
Email is required
Please enter a valid phone number (e.g., 416-111-1111).

About

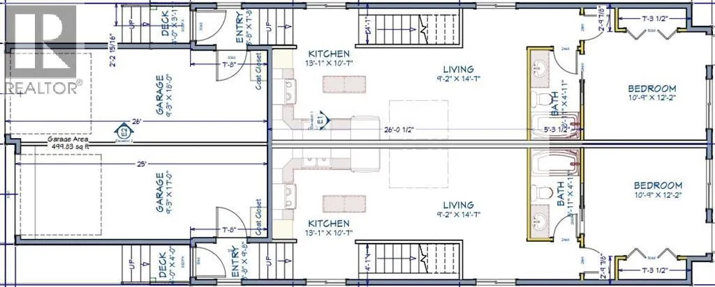
The New Waverley Side-by-Side Duplex by Derksen Builders offers a rare investment opportunity to own a fully independent duplex on one title, with each side featuring 3 bedrooms, two 4-piece bathrooms, a garage, and separate power and gas meters, furnaces, and hot water on demand systems. Designed as a turnkey income property, each unit will be outfitted with a set of basic stainless steel kitchen appliances, range hood fans and washer and dryer. Built with energy efficiency in mind, the construction includes IKO lifetime fiberglass shingles, high-efficiency furnaces, LED lighting, argon-filled double-pane windows, and more. Interior finishes feature vinyl plank flooring on the main level common areas and bathrooms and carpet on the way down stairs and in all bedrooms, laminate counters, soft-close cabinets, real wood dovetail-jointed drawers, and adjustable shelving. The main floor layout includes the kitchen, dining and living areas, one bedroom, and a full bathroom, while the fully finished basement offers two additional bedrooms, a second full bathroom, laundry room, and storage. Backed by a 1-2-5-10 New Home Warranty—covering 1-year builder, 2-year systems, 5-year building envelope, and 10-year structural—this build is scheduled for completion in mid-December 2025. Located in Clairmont, just 5 minutes north of Grande Prairie, this community offers low county taxes (48% less than the city), a K–8 school, walking trails, parks, and quick access to the Clairmont Industrial Park, home to hundreds of oil, gas, and industry service companies, making it an ideal location for both investors and residents alike. If you are wanting to purchase more than one we can build up to 3 IN A ROW !(Pictures are samples and do not represent exact build and option specs) (id:27476)

Property Highlights

MLS® Number
A2242759
Type
Multi-family
Ownership Type
Freehold
Land Size
4143 sqft|4,051 - 7,250 sqft
Parking Space Total
4

Building

Storeys
1.00
Square Footage
1287 sqft
Bathrooms Total
4
Bedrooms Above Ground
2
Bedrooms Total
6
Amenities
Park, Playground, Schools, Shopping
Exterior Finish
Concrete
Fireplace Present
No
Basement Type
Full (Finished)
Basement Features
Building Heating Type
Forced air
Heating Fuel
Natural gas
Building Cooling Type
None

Location