8701 105 Street, Clairmont, Alberta T8x 5B2

Listed for:
$575,000
0 beds
0 baths
Listed 234 days ago
8701 105 Street, Clairmont, Alberta T8x 5B2

View all 1 photos

About

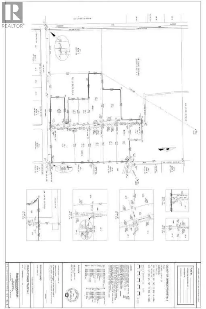
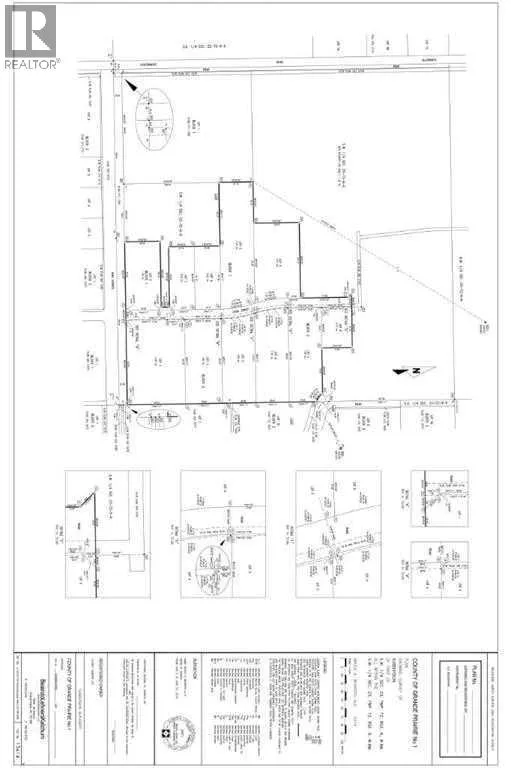
4.4 acres light industrial parcel with all essential services, including municipal water, sanitary sewer, storm sewer, 3 phase power and fibre optic telecommunication services available at the property line. Building construction can be started immediately. This lot is part of phase 1 of the subdivision within “West Clairmont Industrial Park” and is accessible from Bauman Road. This development is close to two major highways, Hwy 42 and Hwy 2. (id:27476)

Property Highlights

MLS® Number
A2259908
Type
Vacant Land
Ownership Type
Freehold
Land Size
4.4 ac|2 - 4.99 acres

Building

Fireplace Present
No
Basement Type
Basement Features
Building Heating Type
Heating Fuel
Building Cooling Type

Location

Learn more about this property
Listing provided by:
RE/MAX House of Real Estate
MLS® number:
A2259908
Agent:
Zawar F. Cheema
*Indicates required field
Name is required
Email is required
Please enter a valid phone number (e.g., 416-111-1111).