11407 95 Street, Clairmont, Alberta T8X 0W9

Listed for:
$379,900
3 beds
3 baths
Listed 49 days ago
Duplex for rent: 11407 95 Street, Clairmont, Alberta T8X 0W9

View all 40 photos

About

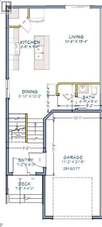
THE NEW PARKER LUXURY DUPLEX IS UNDER CONSTRUCTION AND BACKING ONTO AN EASEMENT, August 2026 possession! -! Modern Luxury 3 bed 2.5 bath Duplex featuring a new design with the Master Bedroom retreat over the garage, up a few more stairs you will find 2 more bedrooms, the main bathroom and the laundry room that accommodates a side by side washer dryer. The contemporary exterior will keep you impressed every time you pull into the driveway. Come on in and be amazed by the incredible kitchen featuring quartz counters, tile back splash, pendant lighting, soft close shaker style cabinets, real wood soft close drawers and Valhalla barn wood vinyl plank flooring. We know storage is important so we included a huge corner pantry. The gorgeous kitchen is finished off with Stainless Steel kitchen appliances. The main floor features an open concept layout throughout the kitchen, living room and dining room and features a handy power room 1/2 bathroom right by the entry. Built-in savings with energy efficiency include hot water on demand, high-efficiency furnace, low-e argon filled double paned windows, LED lighting and LIFETIME fiberglass shingles. The basement is unfinished and ready for your imagination to create the space of your dreams and can accomdate 2 bedrooms and a full bathroom. The 11' by 21' garage is dry-walled insulated and fire taped and has a wifi enabled garage door opener. Clairmont has many kids parks, miles of walking trails and an award winning K-8 primary school and low county taxes, estimated on this home to be $2409 per year. Put your deposit down and reserve (Pictures and renderings are samples from previous builds, please request spec sheet and renderings as per address) (id:27476)

Property Highlights

MLS® Number
A2294112
Type
Single Family
Ownership Type
Freehold
Land Size
3281 sqft|0-4,050 sqft
Parking Space Total
2

Building

Building Type
Duplex
Storeys
3.00
Square Footage
1232 sqft
Bathrooms Total
3
Bedrooms Above Ground
3
Bedrooms Total
3
Amenities
Playground, Schools
Exterior Finish
Concrete
Fireplace Present
No
Basement Type
Full (Unfinished)
Basement Features
Building Heating Type
Forced air
Heating Fuel
Natural gas
Building Cooling Type
None

Location

Learn more about this property
Listing provided by:
Sutton Group Grande Prairie Professionals
MLS® number:
A2294112
Agent:
Daniel Cram
*Indicates required field
Name is required
Email is required
Please enter a valid phone number (e.g., 416-111-1111).