5018 2 Street W, Claresholm, Alberta T0L 0T0

Listed for:
$11
0 beds
0 baths
Listed 28 days ago
Offices for rent: 5018 2 Street W, Claresholm, Alberta T0L 0T0

View all 33 photos

About

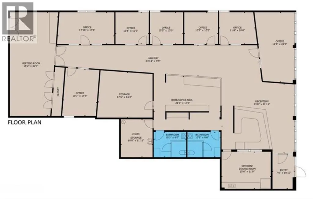
Excellent leasing opportunity in the heart of downtown Claresholm! This well-maintained office/retail building offers flexible space ideal for a variety of professional and commercial uses including professional offices, retail services, medical or wellness clinics, consulting businesses, or shared office operations.The space is thoughtfully laid out and currently configured as a professional office environment, featuring a spacious reception and waiting area, one large executive office, six additional private offices, a large boardroom, printing/copy area, secure file storage room, kitchenette, men’s and women’s washrooms, and a utility room.The property offers flexible leasing options – tenants may lease the entire space or rent individual offices. A total of seven private offices are available, fully furnished with desks and ready for immediate occupancy, providing a convenient turnkey solution for professionals and small businesses.Located in a high-visibility downtown location with ample parking, including staff parking at the rear of the building and angled street parking at the front for clients and visitors. (id:27476)

Property Highlights

MLS® Number
A2290908
Type
Office
Land Size
Unknown

Building

Building Type
Offices
Square Footage
4443 sqft
Fireplace Present
No
Basement Type
Basement Features
Building Heating Type
Heating Fuel
Building Cooling Type

Location

Learn more about this property
Listing provided by:
First Place Realty
MLS® number:
A2290908
Agent:
Fang An
*Indicates required field
Name is required
Email is required
Please enter a valid phone number (e.g., 416-111-1111).