1185 Iron Ridge Avenue, Crossfield, Alberta T0M 0S0

Listed for:
$648,000
4 beds
3 baths
Listed 88 days ago
House for rent: 1185 Iron Ridge Avenue, Crossfield, Alberta T0M 0S0

View all 50 photos

Learn more about this property
Listing provided by:
4th Street Holdings Ltd.
MLS® number:
A2233960
Agent:
Jay Bhinder
*Indicates required field
Name is required
Email is required
Please enter a valid phone number (e.g., 416-111-1111).

About

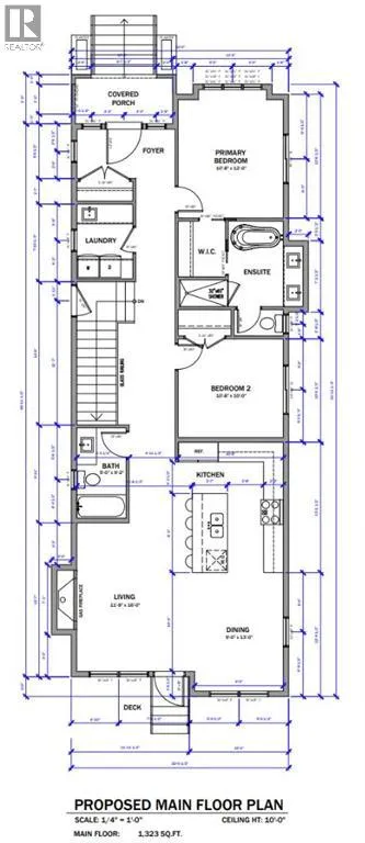
Take a look at this custom-built home in the family-friendly community of Crossfield. This brand-new bungalow offers a total of 2,353 square feet of well-designed living space, with 1,323 square feet on the main floor and 1,030 square feet in the finished basement.Inside, you’ll find 10 foot ceilings on the main level and 9 foot ceilings in the basement, giving the home a bright and open feel. The main floor features a covered front porch, a large deck in the backyard, and an open concept layout that’s perfect for both relaxing and entertaining.The kitchen comes fully loaded with a big island, quartz countertops, premium stainless steel appliances, black hardware, high end lighting, and solid plywood shaker cabinets. The living room has a modern Montigo gas fireplace, and the space is finished with durable luxury vinyl plank flooring, Maple wood touches, and black dual pane windows that give it a modern look.The exterior includes a mix of stucco and stone finishes, all part of the included upgrades.The primary bedroom is a great place to unwind. It comes with a five piece ensuite and a walk in closet. There’s also a second bedroom on the main floor, plus a full four piece bathroom and a laundry room with a sink.Head downstairs and you’ll find even more space including a third bedroom with a walk in closet, a home office, a large rec room with a built in media center and shelving, a wet bar, and a fourth bedroom. There’s also a separate side entrance, perfect for privacy or future rental potential.Outside, there’s a double detached garage, a fully landscaped yard, and plenty of room to enjoy the outdoors.This home is located in the growing Iron Landing area, close to parks, playgrounds, shopping, and schools like Crossfield Elementary and W G Murdoch School. You’re also just a short drive from Airdrie (under 10 minutes), 25 minutes to Calgary, and close to Highway 2 for an easy commute.The home still have the chance to choose some of the finishes to make it your own. Photos shown are from a previous build. Visit our show home to get a feel for the quality and style.Reach out today to learn more or to book a visit. (id:27476)

Property Highlights

MLS® Number
A2233960
Type
Single Family
Ownership Type
Freehold
Land Size
3444 sqft|0-4,050 sqft
Parking Space Total
2

Building

Building Type
House
Storeys
1.00
Square Footage
1323 sqft
Bathrooms Total
3
Bedrooms Above Ground
2
Bedrooms Total
4
Amenities
Golf Course, Park, Playground, Recreation Nearby, Schools, Shopping
Exterior Finish
Concrete, Vinyl siding
Fireplace Present
Yes
Basement Type
Full (Finished)
Basement Features
Separate entrance
Building Heating Type
Other, Forced air
Heating Fuel
Natural gas
Building Cooling Type
None

Location

Street Spotlight - For sale