1931 Mccaskill Drive, Crossfield, Alberta T0M 0C1

Listed for:
$448,000
3 beds
3 baths
Listed 78 days ago
Row / Townhouse for rent: 1931 Mccaskill Drive, Crossfield, Alberta T0M 0C1

View all 13 photos

About

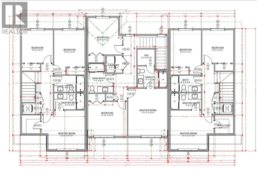
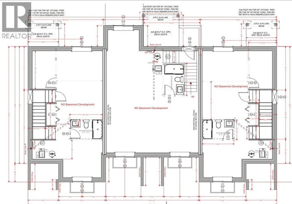
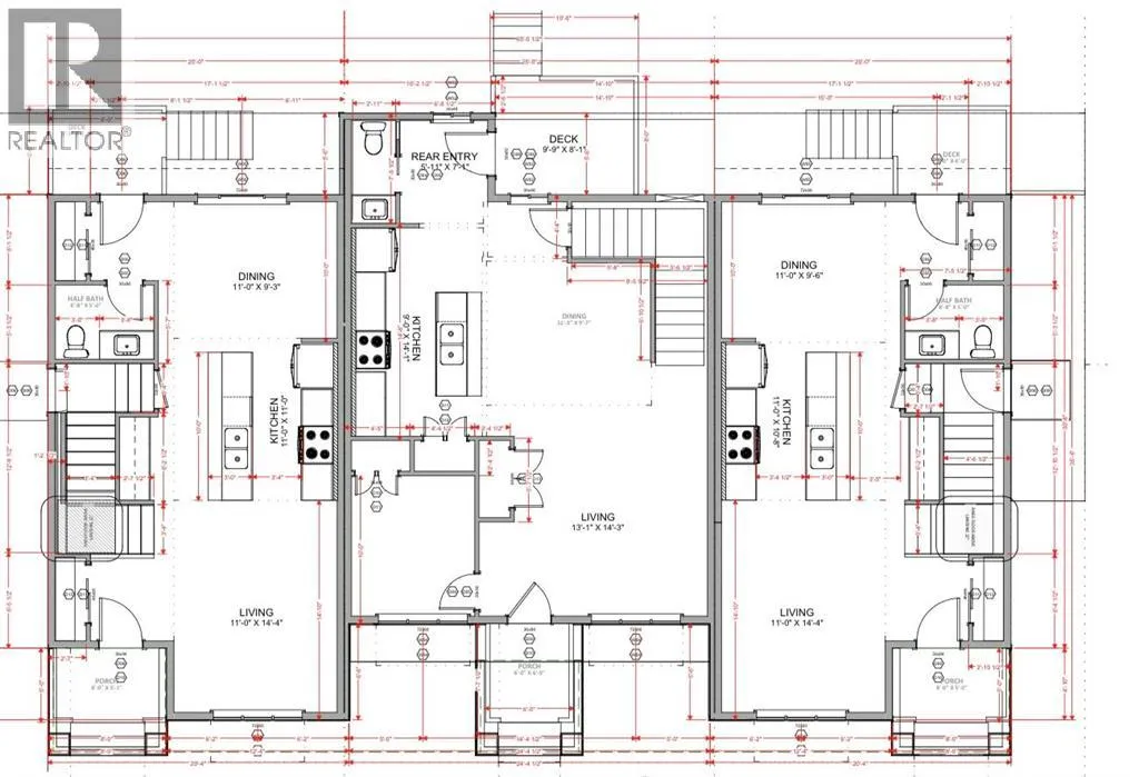
NO Condo Fee! This new built home has spacious 3 bedrooms and 2 full bathrooms upstairs and a half-bathroom on the main floor, modern kitchen, quartz countertops and island, front porch, back yard, a sun deck and separate side entrance to the basement. Well designed living space with modern appliances and finishes, 9 feet ceiling on the main floor. Rear lane access and 2 car parking pad. Crossfield is a quiet and rapidly growing town which has well rated one elementary and one high school, day care, golf course, parks, playgrounds, and other amenities. Strategically located near Airdrie that's 10 minutes drive to Superstore, 15 minutes to Balzac, 25 minutes to Calgary Airport and close to Highway 2 for fast and easy commuting. Unlock your First Home with GST Rebate, must qualify under Govt rules, regulations and guidelines. Don't miss the opportunity - book you're showing today! (id:27476)

Property Highlights

MLS® Number
A2265487
Type
Single Family
Ownership Type
Freehold
Land Size
2850 sqft|0-4,050 sqft
Parking Space Total
2

Building

Building Type
Row / Townhouse
Storeys
2.00
Square Footage
1305 sqft
Bathrooms Total
3
Bedrooms Above Ground
3
Bedrooms Total
3
Amenities
Golf Course, Park, Playground, Schools, Shopping
Exterior Finish
Concrete, Vinyl siding
Fireplace Present
No
Basement Type
Full (Unfinished)
Basement Features
Separate entrance, Walk out
Building Heating Type
Central heating
Heating Fuel
Building Cooling Type
See Remarks

Location

Learn more about this property
Listing provided by:
Insta Realty
MLS® number:
A2265487
Agent:
Aman Batth
*Indicates required field
Name is required
Email is required
Please enter a valid phone number (e.g., 416-111-1111).

Street Spotlight - For sale