316 Flare Avenue Sw, Diamond Valley, Alberta T0L 2A0

Listed for:
$807,450
4 beds
3 baths
Listed 56 days ago
House for rent: 316 Flare Avenue Sw, Diamond Valley, Alberta T0L 2A0

View all 6 photos

About

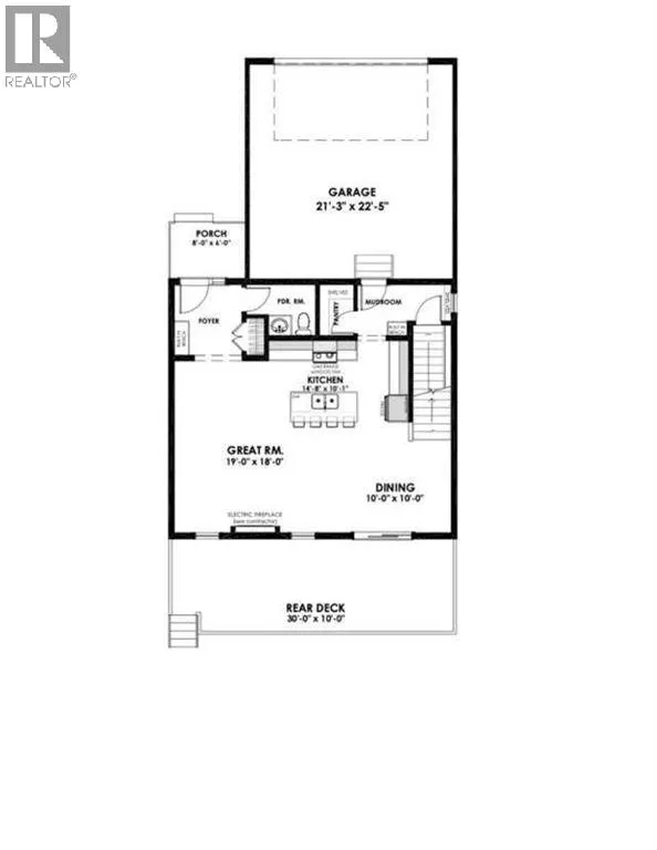
For more information, please click the "More Information" button. Welcome to Lot 42 at 316 Flare Avenue SW in the thoughtfully planned community of Diamond Ridge in Diamond Valley. The Kincaid 4 custom home offers refined two-storey living with a smart, family-focused layout, abundant natural light, and carefully selected finishes that balance function and style. This distinctive four-bedroom, 2.5-bathroom home offers 1,798.4 sq. ft. of developed living space, including 750.6 sq. ft. on the main level and 1,047.8 sq. ft. on the upper level, plus an undeveloped basement providing excellent opportunity for future customization. Large windows throughout create a bright and welcoming atmosphere, while the layout feels open yet thoughtfully defined—ideal for both everyday living and entertaining. The main floor features 9’ ceilings and a seamless connection between the Great Room, dining area, and kitchen. The kitchen is anchored by a large island with breakfast bar and complemented by stone countertops, soft-close cabinetry, a premium LG appliance package, and a convenient pantry for added storage. The foyer offers a welcoming entry point, while a well-designed mudroom with direct access to the attached garage enhances daily convenience. A main floor half bathroom completes this level. Upstairs, 8’ ceilings with engineered wood truss construction create a clean and functional upper level. The second floor features four bedrooms, including a spacious primary retreat with a four-piece ensuite and walk-in closet. A three-piece bathroom serves the additional bedrooms, offering comfortable accommodation for family or guests. The home also benefits from rear lane access, adding flexibility and long-term practicality. Situated in Diamond Ridge, residents enjoy close proximity to local shops, cafés, schools, parks, pathway systems, and access to the Sheep River and regional trail networks. Convenient connections to Okotoks and south Calgary provide an ideal balance of small-to wn charm and accessibility. Estimated completion is scheduled for Summer 2026. Photos are for illustrative purposes only. (id:27476)

Property Highlights

MLS® Number
A2287940
Type
Single Family
Ownership Type
Freehold
Land Size
5331.4 sqft|4,051 - 7,250 sqft
Parking Space Total
4

Building

Building Type
House
Storeys
2.00
Square Footage
1798 sqft
Bathrooms Total
3
Bedrooms Above Ground
4
Bedrooms Total
4
Amenities
Schools, Shopping
Exterior Finish
Composite Siding
Fireplace Present
Yes
Basement Type
Full (Unfinished)
Basement Features
Building Heating Type
Forced air
Heating Fuel
Natural gas
Building Cooling Type
None

Location

Learn more about this property
Listing provided by:
Easy List Realty
MLS® number:
A2287940
Agent:
Darya Pfund
*Indicates required field
Name is required
Email is required
Please enter a valid phone number (e.g., 416-111-1111).

Street Spotlight - For sale