325 John Avenue, Diamond Valley, Alberta T0L 2A0

Listed for:
$719,000
3 beds
3 baths
Listed 36 days ago
House for rent: 325 John Avenue, Diamond Valley, Alberta T0L 2A0

View all 7 photos

About

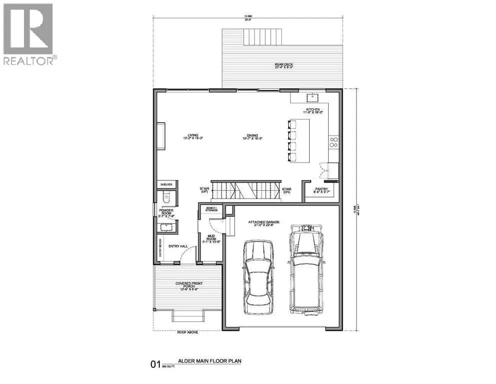
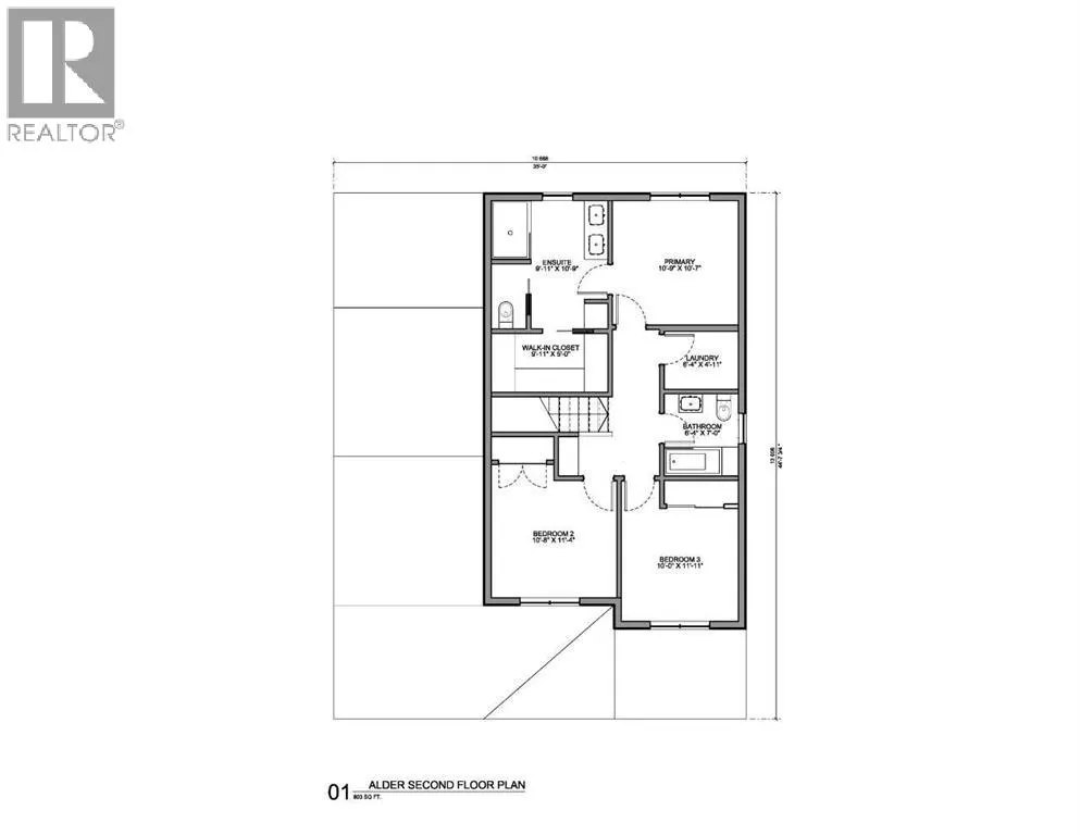
Welcome to the Alder, a thoughtfully designed two-storey new build in the community of Diamond Ridge in Diamond Valley. Built by Albion, this home reflects a focus on quality construction, durable materials, and timeless design.The main floor features 9' ceilings and an open-concept layout ideal for everyday living and entertaining. The kitchen is finished with stone countertops, soft-close cabinetry, a large island, and an upgraded drawer-based lower cabinet system for improved storage and accessibility. A walk-in pantry adds additional convenience, while the dining and living areas open onto a large exterior deck.Upstairs offers three bedrooms, including a spacious primary retreat with a well-appointed ensuite and walk-in closet. The home also includes a full unfinished basement with excellent potential for future development and an oversized attached garage. Currently under construction, this home has an anticipated completion timeline of end of May. Photos are representative. (id:27476)

Property Highlights

MLS® Number
A2292721
Type
Single Family
Ownership Type
Freehold
Land Size
483.35 m2|4,051 - 7,250 sqft
Parking Space Total
4

Building

Building Type
House
Storeys
2.00
Square Footage
1704 sqft
Bathrooms Total
3
Bedrooms Above Ground
3
Bedrooms Total
3
Amenities
Golf Course, Park, Playground, Schools
Exterior Finish
See Remarks
Fireplace Present
Yes
Basement Type
Full (Unfinished)
Basement Features
Building Heating Type
Forced air
Heating Fuel
Natural gas
Building Cooling Type
None

Location

Learn more about this property
Listing provided by:
Bode Platform Inc.
MLS® number:
A2292721
Agent:
David Lofthaug
*Indicates required field
Name is required
Email is required
Please enter a valid phone number (e.g., 416-111-1111).