3000 23 Street N, Didsbury, Alberta T0M 0W0

Listed for:
$1,700,000
0 beds
0 baths
Listed 199 days ago
3000 23 Street N, Didsbury, Alberta T0M 0W0

View all 8 photos

Learn more about this property
Listing provided by:
Real Broker
MLS® number:
A2217303
Agent:
Lynne Redmond
*Indicates required field
Name is required
Email is required
Please enter a valid phone number (e.g., 416-111-1111).

About

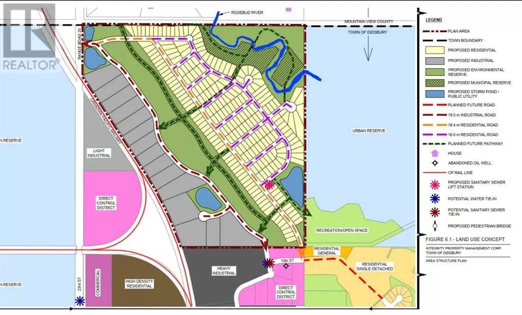
Welcome to Creekside, the premier development nestled on the North End of Didsbury, where the enchanting Rosebud River gracefully winds its way along the northeast corner of the property. As the newest addition to the vibrant town of Didsbury, Creekside promises a harmonious blend of residential and industrial opportunities, making it a prime investment destination. The Residential portion of this development, spans 67.79 Acres plus 10 Acres of the Environmental Reserve. Creekside presents a diverse array of opportunities for developers and investors. Boasting 222 mixed residential lots and 17 separate industrial lots, the development is meticulously planned to ensure a seamless integration of residential and industrial spaces. Moreover, the industrial lots are strategically buffered from residential areas, preserving the peaceful ambiance of the community. Conveniently situated just a short distance West of QE2, Creekside offers unparalleled accessibility while maintaining the tranquility of its natural surroundings. With easy access to major transportation routes, residents and businesses alike will find themselves seamlessly connected to urban amenities and rural charm. (id:27476)

Property Highlights

MLS® Number
A2217303
Type
Vacant Land
Ownership Type
Freehold
Land Size
77.79 ac|50 - 79 acres

Building

Fireplace Present
No
Basement Type
Basement Features
Building Heating Type
Heating Fuel
Building Cooling Type

Location