25 Westheights Drive, Didsbury, Alberta T0M 0W0

Listed for:
$539,900
6 beds
2 baths
Listed 79 days ago
House for rent: 25 Westheights Drive, Didsbury, Alberta T0M 0W0

View all 36 photos

About

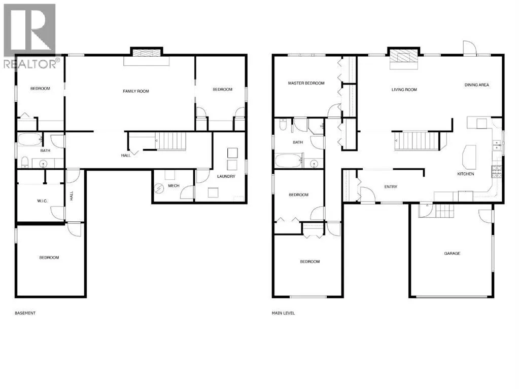
Welcome to your dream family home, perfectly located on an oversized lot with plenty of parking, including a large concrete RV parking area. The private back yard has a playhouse for the kids tucked in one corner and backs onto a large park with playground. Spacious yet cozy, this 6 bedroom home with over 3200 sq. ft. of developed living space offers the perfect blend of comfort, functionality, and charm. Entering the beautiful front courtyard is the start of your journey to discovering all the great features this home offers, like the large open entrance area, the classic wood-burning fireplace with log lighter and solar tube in the sunken living room, hardwood and Artica tile flooring, carpeting that was replaced just three years ago, solid pine doors in the kitchen cabinetry and throughout most of the house, a large kitchen island, a gas stove along with a second oven, three generous-sized bedrooms, and a family bath that boasts a jetted tub as well as a separate shower. The large lower level family room is home to the second fireplace, this one gas. Two of the three basement bedrooms offer double pocket doors and built-in desks. A large laundry room has plenty of room for a second fridge and freezer and a shiny new efficient boiler in the utility room is sure to impress. Dining room garden doors offer access to the large rear deck with pergola that overlooks the rear yard and park behind. Located in the welcoming community of Didsbury, this home combines small-town charm with convenient access to local amenities, schools, and parks and the Didsbury golf course just across the street. It’s an ideal setting for those looking to settle down in a friendly and serene neighborhood. Don’t miss out! Schedule your viewing today and envision the life you’ll create in this great family home. (id:27476)

Property Highlights

MLS® Number
A2276344
Type
Single Family
Ownership Type
Freehold
Land Size
7150 sqft|4,051 - 7,250 sqft
Parking Space Total
8

Building

Building Type
House
Storeys
1.00
Square Footage
1661 sqft
Bathrooms Total
2
Bedrooms Above Ground
3
Bedrooms Total
6
Amenities
Golf Course, Park, Playground, Recreation Nearby, Schools
Exterior Finish
Brick
Fireplace Present
Yes
Basement Type
Full (Finished)
Basement Features
Building Heating Type
Baseboard heaters
Heating Fuel
Natural gas
Building Cooling Type
None

Location

Learn more about this property
Listing provided by:
RE/MAX Rocky View Real Estate
MLS® number:
A2276344
Agent:
Dan Peters
*Indicates required field
Name is required
Email is required
Please enter a valid phone number (e.g., 416-111-1111).