601 7 Street E, Drumheller, Alberta T0J 0Y5

Listed for:
$575,000
0 beds
0 baths
Listed 97 days ago
Commercial Mix for rent: 601 7 Street E, Drumheller, Alberta T0J 0Y5

View all 31 photos

About

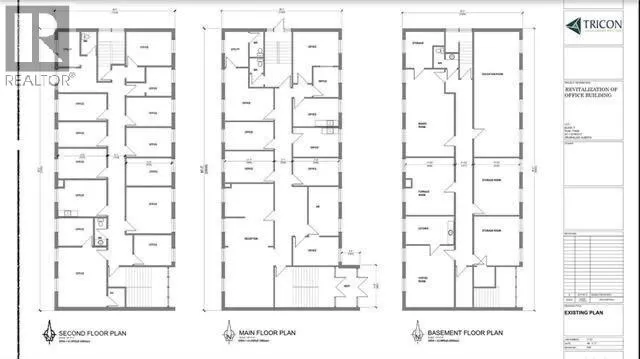
Back on the market!! This is a fantastic opportunity to acquire a rare, well maintained commercial property with roughly 9,000 square feet of space over three floors in a one-of-a-kind Drumheller location. What makes it rare? Occupying a corner lot in one of the town’s most popular riverside residential areas, the property is two blocks from primary traffic routes, a short distance from the downtown district, and immediately across the street from Drumheller’s two large senior’s lodges. Most commercial locations in Drumheller are highway or downtown retail, limiting both their desirability and their accessibility, making this opportunity very uncommon!This location creates unparalleled direct access to the surrounding residential community and the adjacent seniors population - ideal for medical, daycare or service related businesses. This community appeal is evidenced by the long-term main floor tenant, an Alberta Government family and community services centre.The tenanted floor of the building has been fully renovated, however the seller delayed renovating the other two floors to allow buyers to explore the other usage opportunities that the large 18,600 sq.ft (0.43 acre) lot provides - either for building expansion, renovations specific to future tenants, or for possible conversion of the building to residential apartments or condos. This is because Drumheller’s acute residential shortage makes this location also ideal for rental apartments or condominium conversion - providing a myriad of options for a savvy investor beyond the existing commercial and expansion possibilities.Preliminary discussions with the town planning department has shown that there is ample underground capacity for both expansion or conversion, and the planning department has expressed support for both options. Ample municipal services are immediately adjacent to the property to accommodate any expanded requirements for residential use or for building expansion.Access is simple with entrances and wide staircases at either end of the building plus a chair-lift at the main entrance allowing those with mobility limitations access between floors. The roof is relatively new, and the building structure is solid, using dimensional lumber interior framing. High ceilings also allow for easy servicing and cable/plumbing runs - if or as desired. These in combination make it a low-maintenance, extremely affordable, and easy to manage asset. With windows replaced roughly 10 years ago, efficient forced air heating systems and cooling systems, upgraded 400amp electrical, ample parking, key location, plus enviable flexibility for a wide range of current and future usage options - this is a remarkable investment you don’t want to miss! (id:27476)

Property Highlights

MLS® Number
A2247539
Type
Other
Community Name
Riverview Park
Land Size
18857 sqft|10,890 - 21,799 sqft (1/4 - 1/2 ac)
Parking Space Total
32

Building

Building Type
Commercial Mix
Square Footage
9000 sqft
Exterior Finish
Brick, Concrete
Fireplace Present
No
Basement Type
Basement Features
Building Heating Type
Forced air
Heating Fuel
Natural gas
Building Cooling Type
Central air conditioning

Location

Learn more about this property
Listing provided by:
CIR Realty
MLS® number:
A2247539
Agent:
Joseph Belland
*Indicates required field
Name is required
Email is required
Please enter a valid phone number (e.g., 416-111-1111).