5016 50 Street, Eckville, Alberta T0M 0X0

Listed for:
$425,000
0 beds
0 baths
Listed 93 days ago
Commercial Mix for rent: 5016 50 Street, Eckville, Alberta T0M 0X0

View all 6 photos

About

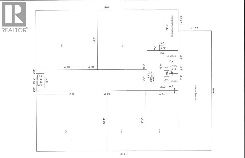
Well-located strip mall in the community of Eckville offering 9,682 sq. ft. divided into five individual bays. Situated on a 90 ft x 130 ft lot, this property benefits from strong exposure and convenient access within town. The building has been recently renovated, providing updated finishes and systems that appeal to both tenants and owner-occupiers.Eckville is located approximately 24 km west of Sylvan Lake, making it a convenient service and retail hub for surrounding communities. The multi-bay layout allows for diversified tenancy and flexible use, making this an attractive option for investors or business owners seeking a well-maintained commercial property in a growing regional market. (id:27476)

Property Highlights

MLS® Number
A2276336
Type
Other
Ownership Type
Freehold
Land Size
90x130|Unknown

Building

Building Type
Commercial Mix
Square Footage
9682 sqft
Fireplace Present
No
Basement Type
Basement Features
Building Heating Type
Heating Fuel
Building Cooling Type

Location

Learn more about this property
Listing provided by:
REMAX ACA Realty
MLS® number:
A2276336
Agent:
Don Sackett
*Indicates required field
Name is required
Email is required
Please enter a valid phone number (e.g., 416-111-1111).