5704 144 St Nw, Edmonton, Alberta T6H 4H4

Listed for:
$795,000
3 beds
3 baths
Listed 59 days ago
House for rent: 5704 144 St Nw, Edmonton, Alberta T6H 4H4

View all 51 photos

Learn more about this property
Listing provided by:
Royal Lepage Arteam Realty
MLS® number:
E4457511
Agent:
Steve Balay
*Indicates required field
Name is required
Email is required
Please enter a valid phone number (e.g., 416-111-1111).

About

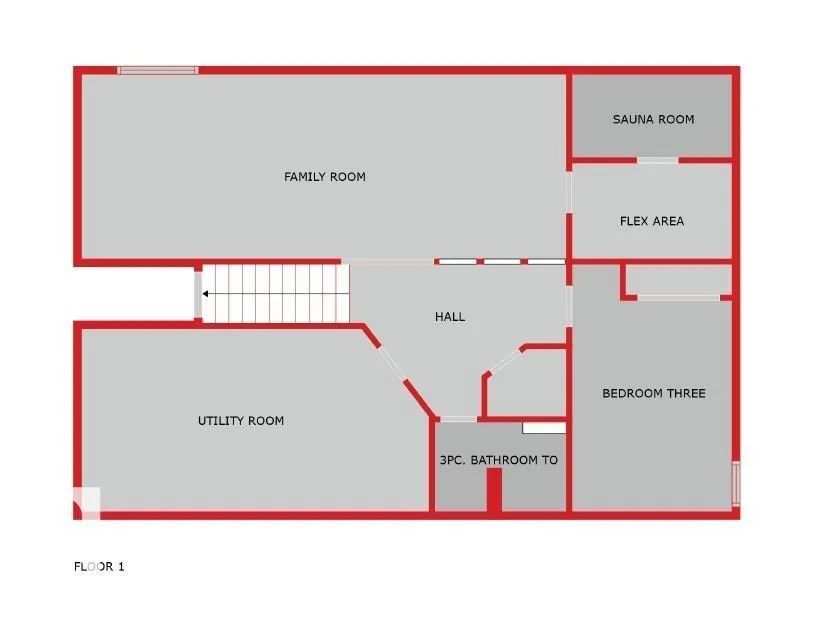
Outstanding! Majorly renovated and upgraded bungalow in a very desirable location. Some of the notable features include the open beam vaulted ceilings throughout the main floor, the huge chef's kitchen with antique finish shaker maple cabinets, dark granite counters and walk in pantry, quality hand scraped engineered hardwood and slate tile flooring. The large living room with gas fireplace, 2 bedrooms, 2 full bathrooms, an amazing den with a library plus the laundry room complete the main level. The primary bdrm has a walk in closet and a spa like ensuite bathroom with walk in shower. The finished basement has spacious family room with wet bar, a 3rd bedroom, 3 pc bathroom and dry sauna. Double detached garage plus a separate heated workshop. The back yard is quite private, is fully landscaped with mature trees and perennials and there is a welcoming composite deck across the back of the home. Fantastic property, rare opportunity in Brookside! (id:27476)

Property Highlights

MLS® Number
E4457511
Type
Single Family
Ownership Type
Freehold
Land Size
633.23 m2

Building

Building Type
House
Storeys
1.00
Square Footage
1831 sqft
Bathrooms Total
3
Bedrooms Total
3
Amenities
Schools
Fireplace Present
No
Basement Type
Full (Finished)
Basement Features
Building Heating Type
Forced air
Heating Fuel
Building Cooling Type

Location