2303 139 Av Nw, Edmonton, Alberta T5Y 1S1

Listed for:
$194,900
3 beds
2 baths
Listed 62 days ago
Row / Townhouse for rent: 2303 139 Av Nw, Edmonton, Alberta T5Y 1S1

View all 53 photos

Learn more about this property
Listing provided by:
Sterling Real Estate
MLS® number:
E4457901
Agent:
Glen Teghtmeyer
*Indicates required field
Name is required
Email is required
Please enter a valid phone number (e.g., 416-111-1111).

About

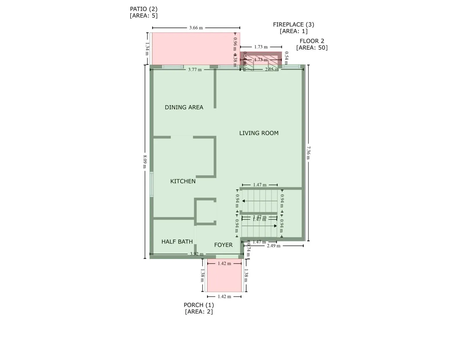
WOW. LOW condo fees: ONLY 273/mo. CORNER UNIT. Lovingly cared for three bedroom two bathrooms including 1/2 bath on main floor. Plus fully finished basement. Don't miss out on this unit which is wonderfully located in picturesque, convenient and well located community of Bannerman. Walking distance to beautiful river valley, parks, schools, shopping. Quick access to Anthony Henday is just minutes away. Sunny kitchen with abundance of cabinets and countertops. Separate dinette/dining area. Spacious living room and HUGE rec room in basement. Energized parking stall close by. Fully fenced and beautiscaped yard. Ready to move in. Very well loved home ready for new owner. DONT miss out. (id:27476)

Property Highlights

MLS® Number
E4457901
Type
Single Family
Maintenance Fee
273.00
Ownership Type
Condominium/Strata
Land Size
240.21 m2

Building

Building Type
Row / Townhouse
Storeys
2.00
Square Footage
1044 sqft
Bathrooms Total
2
Bedrooms Total
3
Amenities
Golf Course, Public Transit, Schools, Shopping
Fireplace Present
No
Basement Type
Full (Finished)
Basement Features
Building Heating Type
Forced air
Heating Fuel
Building Cooling Type

Location