9007 153 St Nw, Edmonton, Alberta T5R 1P4

Listed for:
$687,400
6 beds
4 baths
Listed 17 days ago
House for rent: 9007 153 St Nw, Edmonton, Alberta T5R 1P4

View all 72 photos

Learn more about this property
Listing provided by:
Century 21 All Stars Realty Ltd
MLS® number:
E4464233
Agent:
Mandeep Kandola
*Indicates required field
Name is required
Email is required
Please enter a valid phone number (e.g., 416-111-1111).

About

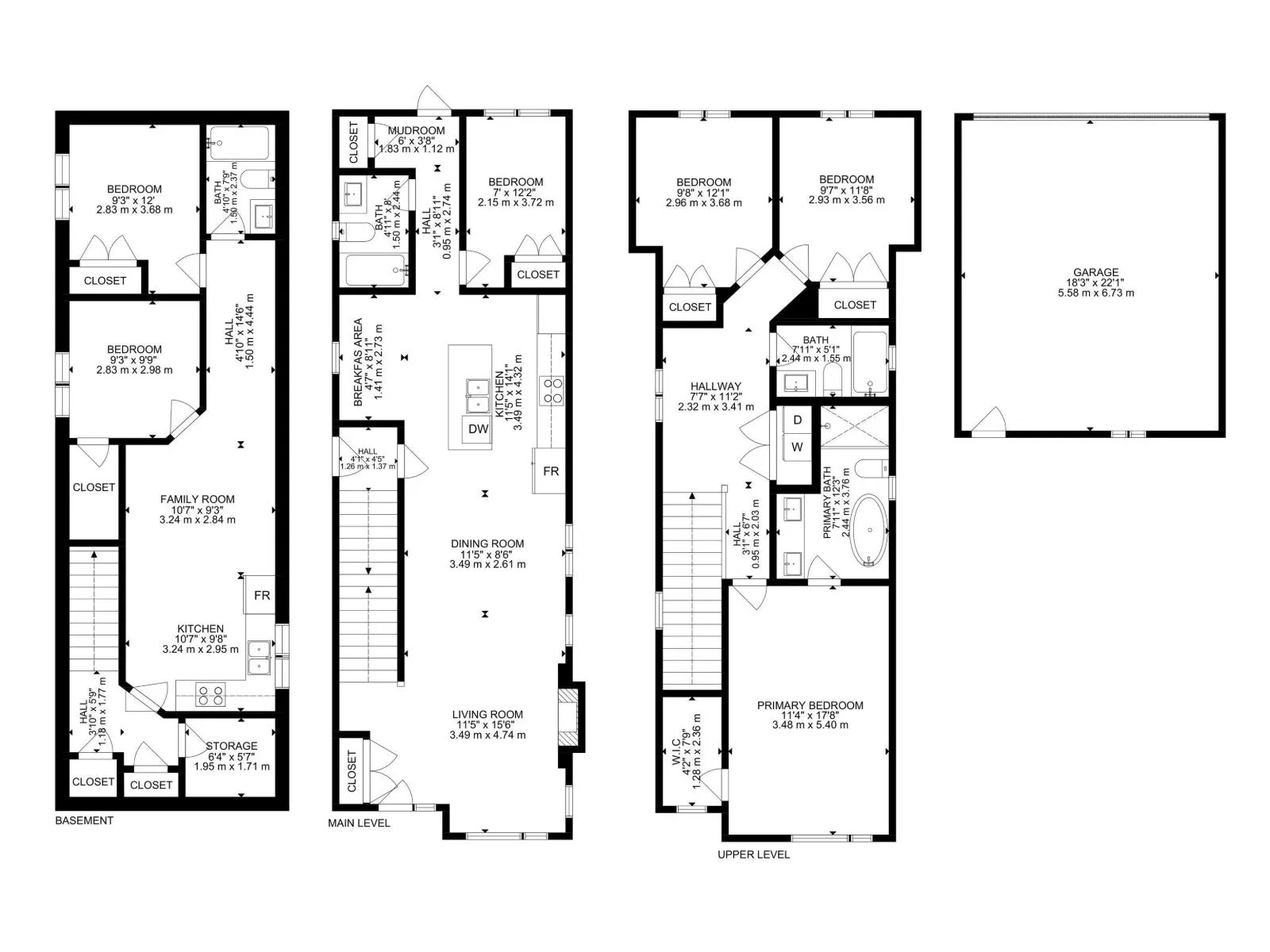
UPGRADED HOME IN THE COMMUNITY OF JASPER PARK! This Brand New home offers 2540 Sq Ft of living space with 6 bedrooms, 4 baths, 9ft ceilings, 8ft doors. Main floor offers vinyl plank flooring, bedroom, Full bath, family room, fireplace. Kitchen with modern high cabinetry, quartz countertops, island. Amply Large Mud room, Spacious dinning area with ample sunlight is perfect for get togethers. Walk up stairs to Grand master Suite with 5 piece ensuite/spacious walk in closet, 2 more bedrooms with fully modern common bath, Laundry and bonus area. Fully finished 2 bedroom legal basement suite with separate entrance, 2nd Kitchen, Full bath and Laundry. Your dream home sitting on HUGE lot is next to James Gibbons School, parks, amenities. Includes DETACHED Double Car Garage, TRIPLE PANE WINDOWS, ROUGH GRADE, GAS LINE IN KITCHEN & PATIO. this home offers exceptional value and style. Move-in ready - Don't miss out on this fantastic opportunity! (id:27476)

Property Highlights

MLS® Number
E4464233
Type
Single Family
Ownership Type
Freehold

Building

Building Type
House
Storeys
2.00
Square Footage
1787 sqft
Bathrooms Total
4
Bedrooms Total
6
Amenities
Schools, Shopping
Fireplace Present
No
Basement Type
Full (Finished)
Basement Features
Suite
Building Heating Type
Forced air
Heating Fuel
Building Cooling Type

Location