3772 30 St Nw, Edmonton, Alberta T6T 1H6

Listed for:
$560,000
4 beds
3 baths
Listed 11 days ago
House for rent: 3772 30 St Nw, Edmonton, Alberta T6T 1H6

View all 54 photos

Learn more about this property
Listing provided by:
Century 21 Leading
MLS® number:
E4465094
Agent:
Dwight L. Hayes
*Indicates required field
Name is required
Email is required
Please enter a valid phone number (e.g., 416-111-1111).

About

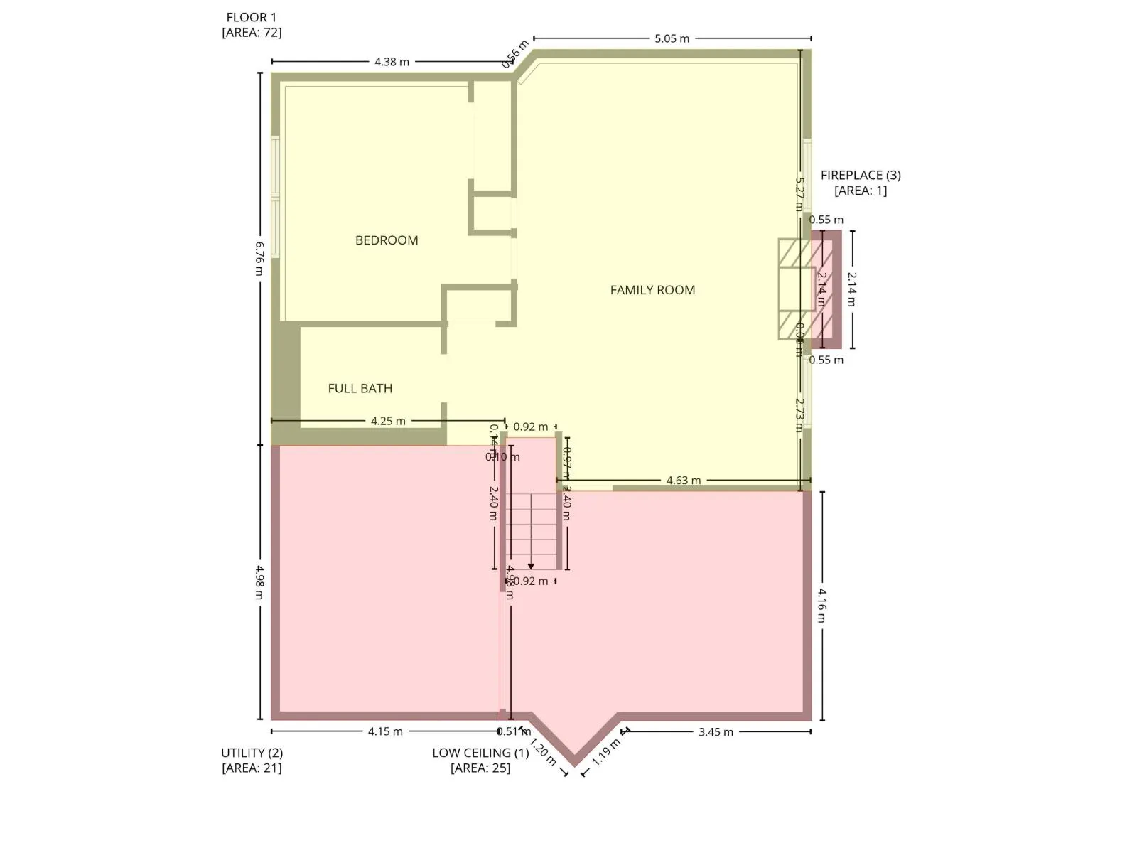
Welcome to your dream family retreat! This well-maintained 3 Bed, 3 Bath, bi-level home offers over 1,360 sq ft of comfortable living space, with inviting outdoor features. Nestled in the desirable Larkspur community, it's an ideal spot for families seeking convenience and natural beauty. A spacious layout of 3 generous bedrooms and 3 full bathrooms, including a primary suite with a private sunroom – your personal oasis for morning coffee or evening relaxation. For entertainment or family fun enjoy the expansive family room designed for gatherings, movie nights, and everyday fun. If that is not enough a beautifully landscaped yard with a large area for BBQs and summer evenings sitting around on the patio furniture and soaking in the sunshine. This well-maintained home features newer appliances, furnace, and hot water tank ensure worry-free living and energy efficiency. Just steps from Meadowbrook Lake or Wild Rose Park for leisurely walks and playground adventures. (id:27476)

Property Highlights

MLS® Number
E4465094
Type
Single Family
Ownership Type
Freehold
Land Size
666.85 m2
Parking Space Total
4

Building

Building Type
House
Square Footage
1367 sqft
Bathrooms Total
3
Bedrooms Total
4
Amenities
Vinyl Windows Schools, Shopping
Fireplace Present
No
Basement Type
Full (Finished)
Basement Features
Building Heating Type
Forced air
Heating Fuel
Building Cooling Type

Location