29 Ridgeway Dr Nw, Edmonton, Alberta T6P 1G4

Listed for:
$79,999
2 beds
1 baths
Listed 11 days ago
House for rent: 29 Ridgeway Dr Nw, Edmonton, Alberta T6P 1G4

View all 22 photos

Learn more about this property
Listing provided by:
MaxWell Polaris
MLS® number:
E4465150
Agent:
Paul Singh
*Indicates required field
Name is required
Email is required
Please enter a valid phone number (e.g., 416-111-1111).

About

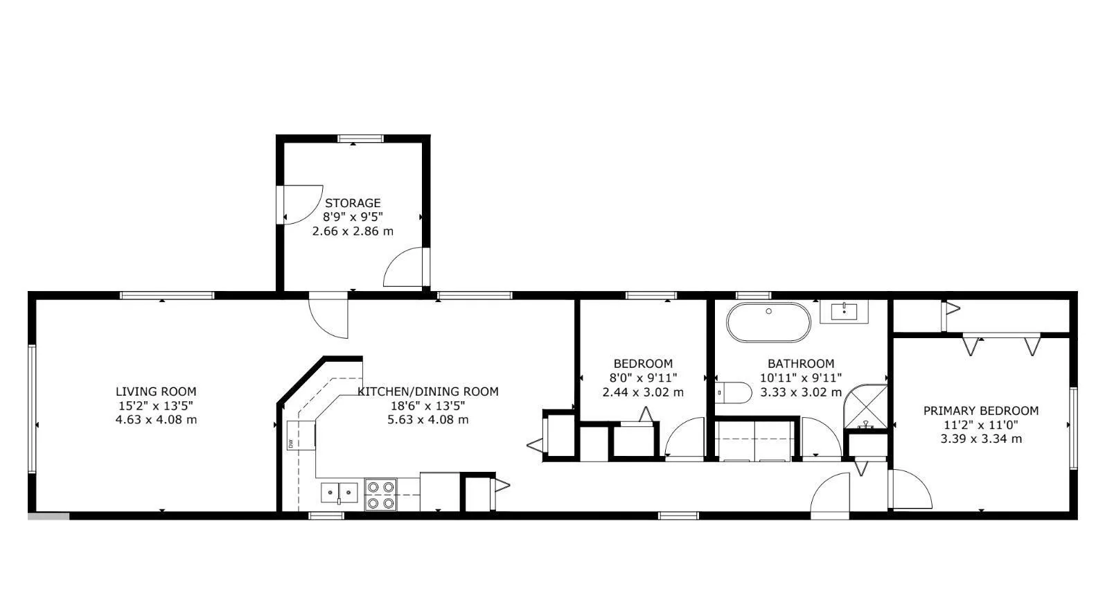
1052 sq ft spacious fully renovated 2 bedroom Mobile home for sale in Maple ridge park. Exterior comes with 1 covered and 1 uncovered deck, 2 sheds, nice size yard fully fenced. 2 parking spots with front drive access plus plenty of street parking in front. The furnace is approx 16 years, Hot water tank is newer. In 2021, the roof was replaced, new siding was installed and triple pane windows were done. In 2025, the following were done - Heat trace, panel servicing by a certified master electrician, Interior fully renovated with new kitchen, drywall, all new PEX plumbing, flooring, countertops, cabinets, bathroom shower and soaker tub, paint, stainless steel appliances, lighting fixtures, doors, sinks and faucets. Property Tax for 2025 was only $486.66. Pad fee is $754 per month. Some of the pictures are virtually staged. (id:27476)

Property Highlights

MLS® Number
E4465150
Type
Single Family
Ownership Type
Leasehold
Parking Space Total
2

Building

Building Type
House
Storeys
1.00
Square Footage
1052 sqft
Bathrooms Total
1
Bedrooms Total
2
Amenities
Vinyl Windows Playground, Public Transit, Schools, Shopping
Fireplace Present
No
Basement Type
Basement Features
Building Heating Type
Forced air
Heating Fuel
Building Cooling Type

Location