6003 Stanton Dr Sw, Edmonton, Alberta T6X 1H3

Listed for:
$389,000
3 beds
3 baths
Listed 6 days ago
Duplex for rent: 6003 Stanton Dr Sw, Edmonton, Alberta T6X 1H3

View all 51 photos

Learn more about this property
Listing provided by:
MaxWell Devonshire Realty
MLS® number:
E4465453
Agent:
Mike W. Brattland
*Indicates required field
Name is required
Email is required
Please enter a valid phone number (e.g., 416-111-1111).

About

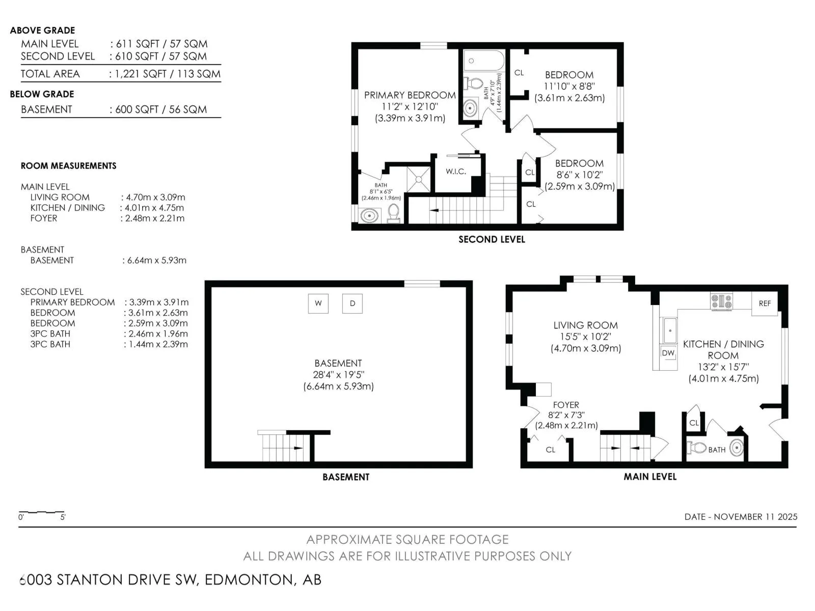
LAKE ACCESS with a Southeast facing Corner lot and oversized heated garage in Summerside!!! From the moment you enter this 1221 square foot, 3 bedroom, 2-1/2 bathroom home, you start noticing the little things. TONS of oversized windows filling the living space and kitchen with natural light, new Vinyl flooring, and the open concept you have been looking for. When it gets too warm, your Central A/C will keep you nice and cool. In the primary retreat, you will find a walkin closet and full 3pc ensuite. The AMAZING back yard space is filled with Stamped concrete walkways, dedicated fire gathering place and decorative gate. The Oversized 9-1/2' height, 22'x22', HEATED & INSULATED. 2 car garage is immaculate and even has a 5' x 18' attic space AND comes with a SNOW BLOWER. This rare opportunity in Summerside has it all, and is ready for your family to celebrate this Christmas in. (id:27476)

Property Highlights

MLS® Number
E4465453
Type
Single Family
Ownership Type
Freehold
Land Size
362.25 m2
Parking Space Total
3

Building

Building Type
Duplex
Storeys
2.00
Square Footage
1216 sqft
Bathrooms Total
3
Bedrooms Total
3
Amenities
Public Transit
Fireplace Present
No
Basement Type
Full (Unfinished)
Basement Features
Building Heating Type
Forced air
Heating Fuel
Building Cooling Type
Central air conditioning

Location