1281 Hooke Rd Nw, Edmonton, Alberta T5A 4A5

Listed for:
$275,900
3 beds
2 baths
Listed 3 days ago
Row / Townhouse for rent: 1281 Hooke Rd Nw, Edmonton, Alberta T5A 4A5

View all 61 photos

Learn more about this property
Listing provided by:
Royal Lepage Premier Real Estate
MLS® number:
E4465936
Agent:
Carl Rivest-marier
*Indicates required field
Name is required
Email is required
Please enter a valid phone number (e.g., 416-111-1111).

About

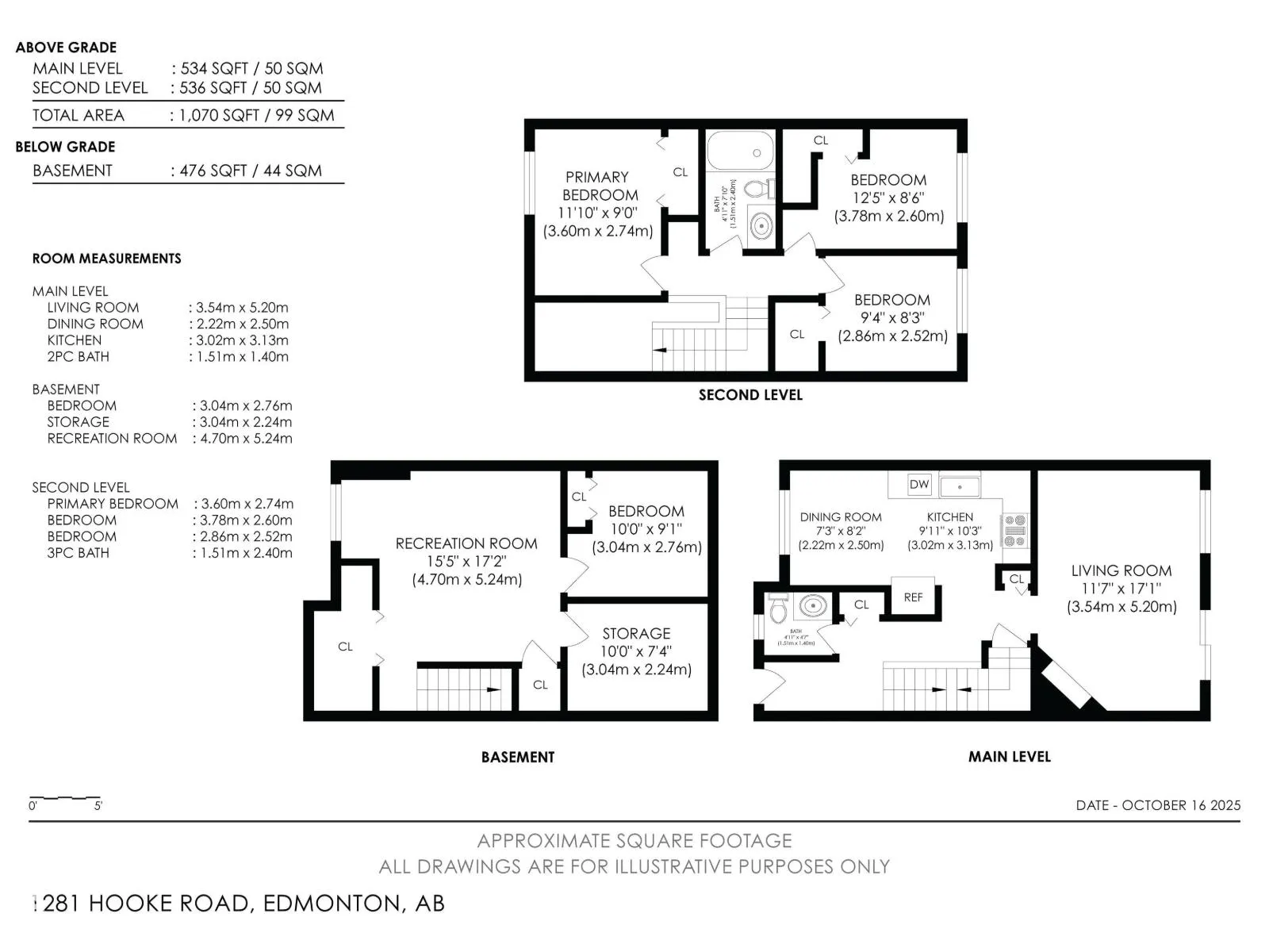
Welcome to Pioneer Estates! This stunning, fully renovated 3-bedroom townhome offers an exceptional, opportunity in a prime location near schools, bus stops, walking trails, shopping, the River Valley, and Hermitage Park.The main floor features all-new, durable vinyl flooring, leading you into a brand new kitchen complete with elegant quartz countertops. Both the main floor 2-piece and the upstairs 4-piece bathroom have been completely renovated with modern fixtures, finishes, and beautiful, elegant tiling in the upstairs bathroom. Enjoy year-round comfort with the addition of central AC. Comfort continues upstairs with brand new carpet in all three spacious bedrooms, ensuring warmth and quiet. The fully finished basement offers a versatile family room, a convenient laundry area, plenty of storage, plus a separate flex room perfect for a home office. Located in a well-managed, pet-friendly complex, one assigned parking stall is included, with the option to rent a second. Some picture are Virtually stage (id:27476)

Property Highlights

MLS® Number
E4465936
Type
Single Family
Maintenance Fee
309.00
Ownership Type
Condominium/Strata
Parking Space Total
1

Building

Building Type
Row / Townhouse
Storeys
2.00
Square Footage
1066 sqft
Bathrooms Total
2
Bedrooms Total
3
Amenities
Vinyl Windows Golf Course, Playground, Public Transit, Schools, Shopping
Fireplace Present
No
Basement Type
Full (Finished)
Basement Features
Building Heating Type
Forced air
Heating Fuel
Building Cooling Type
Central air conditioning

Location