10020 Jasper Avenue, Edmonton, Alberta T5J 1R2

Listed for:
$545,000
0 beds
0 baths
Listed 9 days ago
10020  Jasper Avenue, Edmonton, Alberta T5J 1R2

View all 5 photos

Learn more about this property
Listing provided by:
HonestDoor Inc
MLS® number:
43689578
Agent:
Michelle A. Plach
*Indicates required field
Name is required
Email is required
Please enter a valid phone number (e.g., 416-111-1111).

About

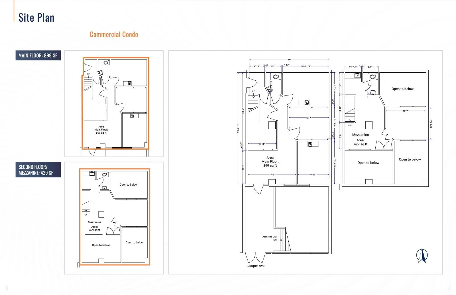
Visit the Listing Brokerage (and/or listing REALTOR®) website to obtain additional information. Cambridge Lofts Commercial Condo is an exceptional property located on Jasper Avenue, one of Edmonton’s most prominent and bustling streets, offering high visibility and easy access to key amenities. Situated in the heart of the downtown core and surrounded by office buildings, retail spaces, and residential developments, this location benefits from a steady flow of pedestrian traffic and a vibrant entertainment district.Other Property Types: RetailSubject Space Width: 25Ownership Interest: PrivateTitle to Land: Fee SimpleRPR Survey Available: NoSeller Rights: YesAppointment Name: Michelle PlachAppointment Phone: 780-860-8400Paragon Listing ID: E4422068 (id:27476)

Property Highlights

MLS® Number
43689578
Type
Retail
Land Size
0|Unknown

Building

Square Footage
1328 sqft
Fireplace Present
No
Basement Type
Basement Features
Building Heating Type
Heating Fuel
Building Cooling Type

Location