17410 107 Avenue, Edmonton, Alberta T5S 1E9

Listed for:
$9
0 beds
0 baths
Listed 9 days ago
17410  107 Avenue, Edmonton, Alberta T5S 1E9

View all 6 photos

Learn more about this property
Listing provided by:
NAI Commercial Real Estate Inc
MLS® number:
43691277
Agent:
Ryan C. Brown
*Indicates required field
Name is required
Email is required
Please enter a valid phone number (e.g., 416-111-1111).

About

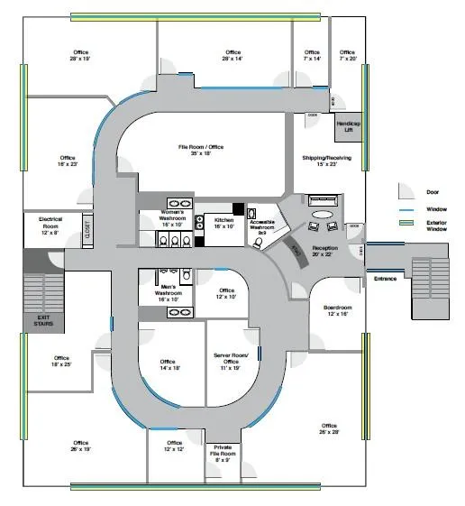
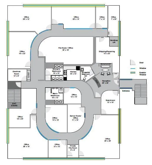
7,700 - 15,400 sq.ft.± freestanding office/retail building for sale or for lease. Current build out consists of 10-13 large offices, kitchenette, boardroom,reception, private entrance and washrooms on the second floor with a largely open concept retail/office set up on the main floor. Lift/elevator available for second floor access. Fiber optics available. Situated with 165 feet of exposure to 107 Ave and easy access between 170 Street and 178 Street. Up to 70 parking stalls on 0.68 acres. Building signage opportunities available. Net Lease rate Main floor - $12.00/sq.ft./annum. Second floor $9.00/sq.ft./annum. Operating costs $8.75/sq.ft/annum.Other Property Types: Office,RetailSubject Space Width: 75Ownership Interest: PrivateTitle to Land: Fee SimpleRPR Survey Available: NoSeller Rights: NoAppointment Name: Ryan BrownAppointment Phone: 780-964-8624Lease Operating Costs Included: (2023) includes common area maintenance, property taxes, building insurance, management fees, gas, water and powerParagon Listing ID: E4346388 (id:27476)

Property Highlights

MLS® Number
43691277
Type
Office
Land Size
0|Unknown

Building

Square Footage
15400 sqft
Fireplace Present
No
Basement Type
Basement Features
Building Heating Type
Heating Fuel
Building Cooling Type

Location