6817 104 Street, Edmonton, Alberta T6H 2L5

Listed for:
$15
0 beds
0 baths
Listed 9 days ago
6817  104 Street, Edmonton, Alberta T6H 2L5

View all 1 photos

Learn more about this property
Listing provided by:
NAI Commercial Real Estate Inc
MLS® number:
43690751
Agent:
Conor J. Clarke
*Indicates required field
Name is required
Email is required
Please enter a valid phone number (e.g., 416-111-1111).

About

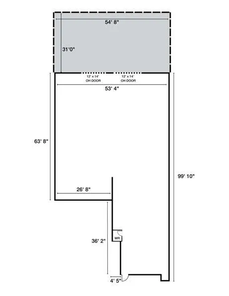
4,100 sq.ft.± retail/warehouse bay available for lease at 6817 – 104 Street in Edmonton. The space includes two 12’ x 14’ grade loading doors, 18’ ceiling height, an air make-up system, and a fenced 1,695 sq.ft.± yard. The site offers exposure to 22,042 vehicles per day (2023 City of Edmonton – 104 Street north of 65 Avenue) with DC1 zoning. Parking includes street stalls in front and scramble parking to the north and south of the building.Other Property Types: Industrial,RetailSubject Space Width: 54Ownership Interest: PrivateTitle to Land: LeaseholdRPR Survey Available: NoSeller Rights: NoAppointment Name: Conor ClarkeAppointment Phone: 780-720-7352Lease Operating Costs Included: Common area maintenance, property taxes, building insurance & UtilitiesParagon Listing ID: E4454918 (id:27476)

Property Highlights

MLS® Number
43690751
Type
Industrial
Land Size
0|Unknown

Building

Square Footage
4100 sqft
Fireplace Present
No
Basement Type
Basement Features
Building Heating Type
Heating Fuel
Building Cooling Type

Location