11706 126 St Nw, Edmonton, Alberta T5M 0S2

Listed for:
$659,900
6 beds
4 baths
Listed 23 days ago
House for rent: 11706 126 St Nw, Edmonton, Alberta T5M 0S2

View all 61 photos

About

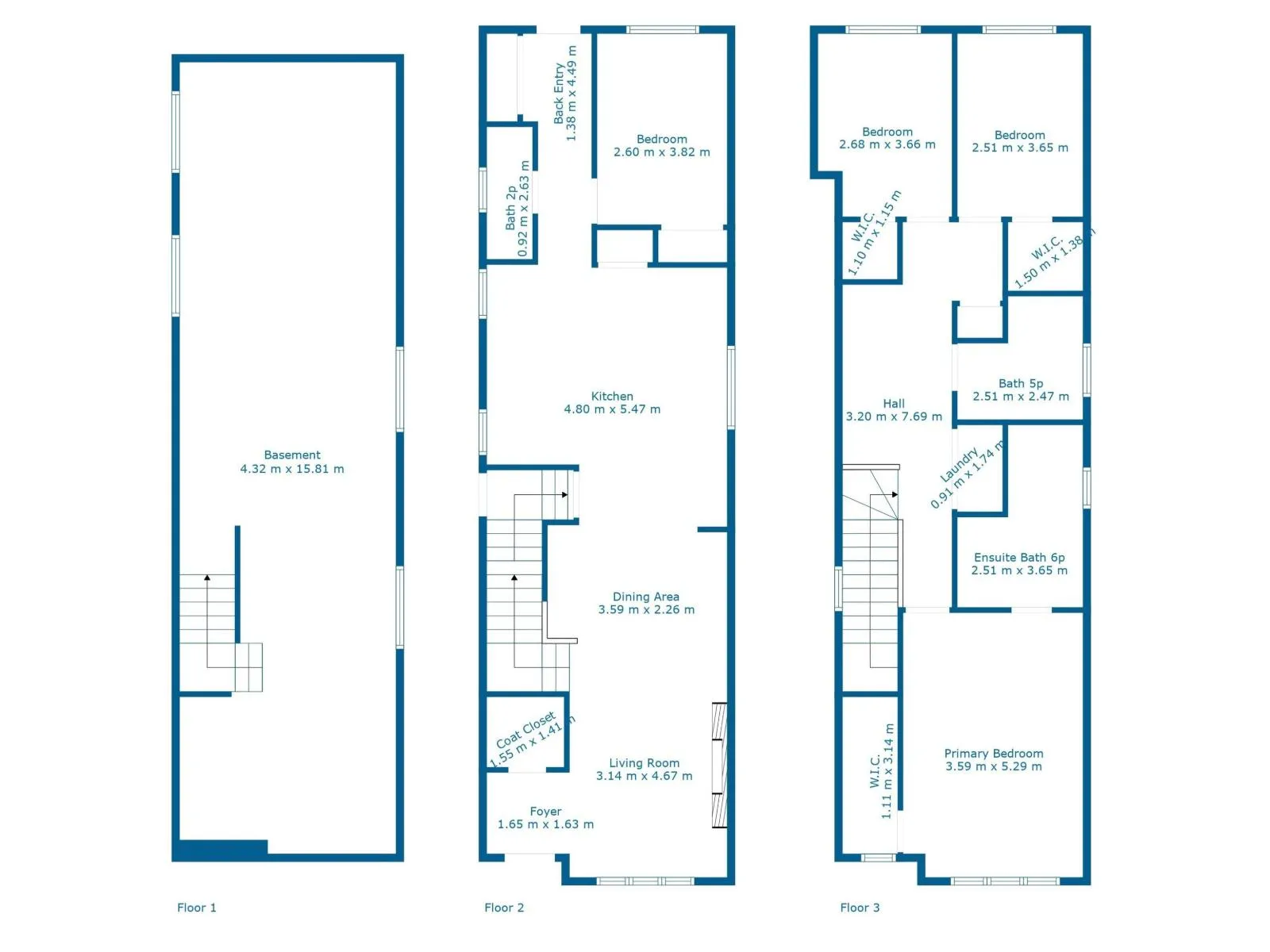
Move in and enjoy everything this brand-new HOME has to offer! This gem seamlessly blends modern design with ultimate comfort. Boasting 6 bedrooms,4 bathrooms & an open-concept living space.The property features 2 BED LEGAL BASEMENT SUITE with SEPARATE SIDE ENTRANCE.This home offers a versatile office/bedroom on the main floor. The chef-inspired kitchen is a true highlight, with built in stainless steel appliances , quartz countertops, tiled backsplash, huge waterfall island perfect for meal prep and entertaining. Luxury finishes are evident throughout w Lots of windows for natural sunlight on all floors including 5 windows in basement,9-foot ceilings on 3 levels, luxury vinyl plank flooring, custom walls & floor tiles, LED light fixtures, 40+ pot lights, electric fireplace with 8 ft tile accent wall.Glass door shower with bench. The extra large primary suite offers a feature wall & huge walk-in closet.Step outside to your private backyard with deck & detached double garage.Close to MacEwan,Nait Downtown (id:27476)

Property Highlights

MLS® Number
E4470896
Type
Single Family
Ownership Type
Freehold

Building

Building Type
House
Storeys
2.00
Square Footage
1884 sqft
Bathrooms Total
4
Bedrooms Total
6
Amenities
Ceiling - 9ft Playground, Schools, Shopping
Fireplace Present
Yes
Basement Type
Full (Finished)
Basement Features
Suite
Building Heating Type
Forced air
Heating Fuel
Building Cooling Type

Location

Learn more about this property
Listing provided by:
Homes & Gardens Real Estate Limited
MLS® number:
E4470896
Agent:
Ch Tahir Masud
*Indicates required field
Name is required
Email is required
Please enter a valid phone number (e.g., 416-111-1111).