2836 1 Av Sw, Edmonton, Alberta T6X 3E2

Listed for:
$759,900
5 beds
4 baths
Listed 99 days ago
House for rent: 2836 1 Av Sw, Edmonton, Alberta T6X 3E2

View all 8 photos

About

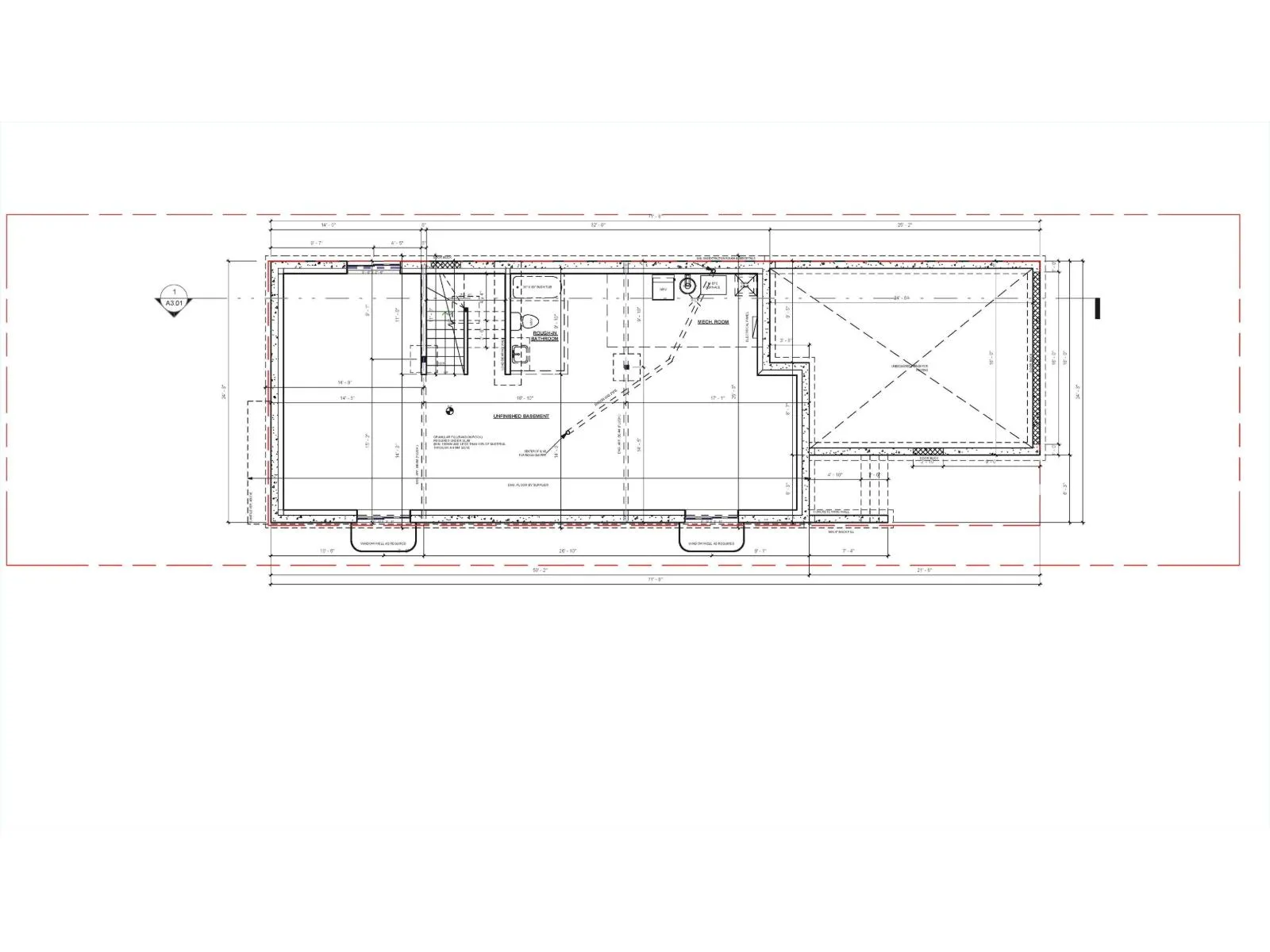
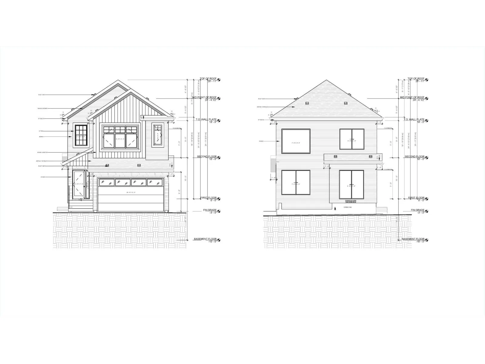
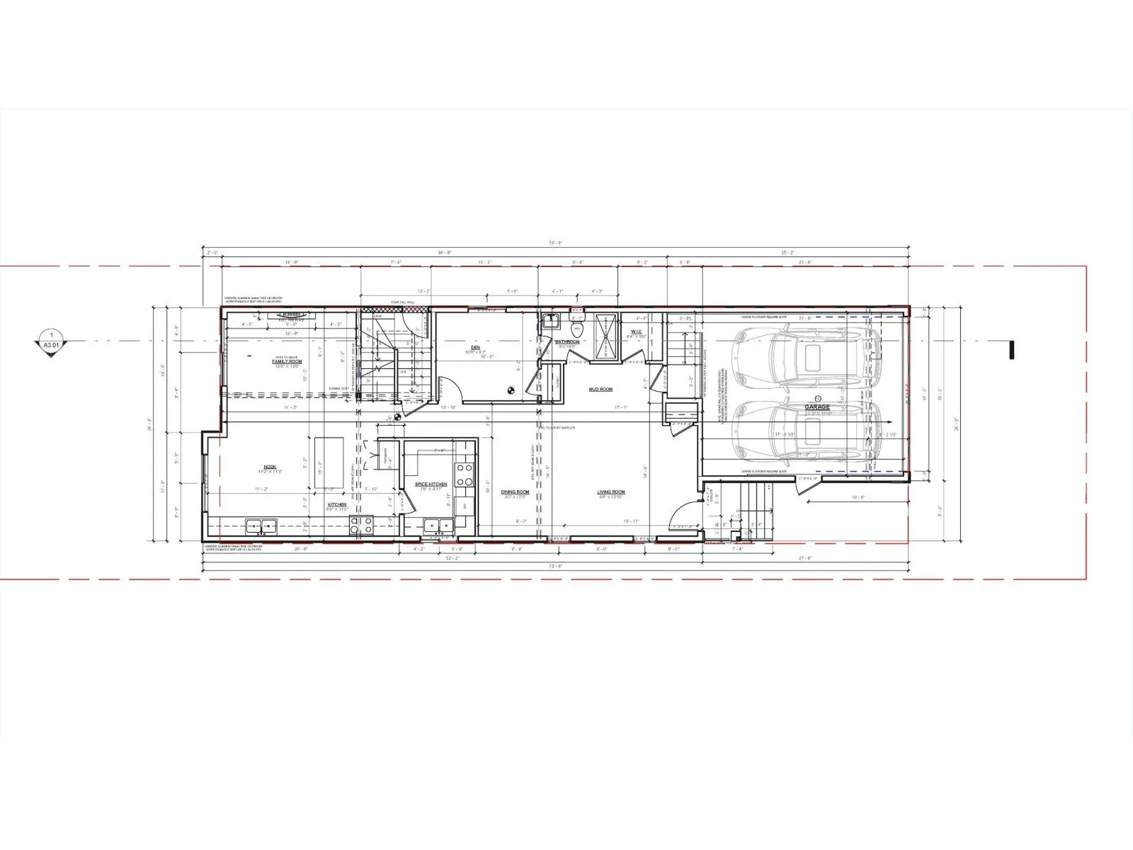
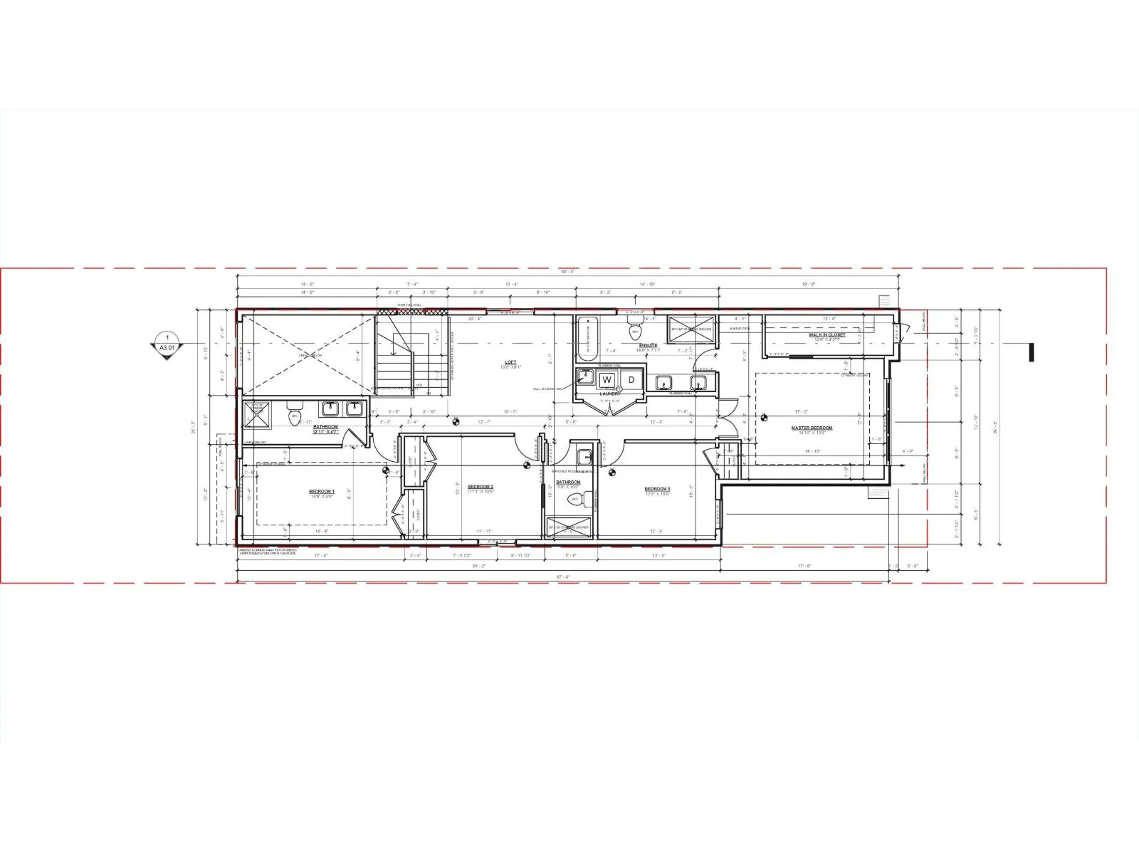
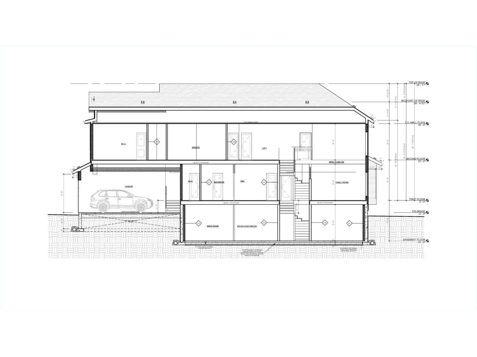
An exceptional pre-construction opportunity to build your dream custom home in the thriving community of Alces! This is one of the last remaining lots backing onto a peaceful green space, offering both privacy and scenic views. Create a fully customizable floor plan with options for up to FIVE bedrooms , FOUR full bathrooms, a spice kitchen with walk-through pantry, an open-to-above living room, an extended kitchen with dining nook, and a separate basement entrance—perfect for future development or suite potential. Personalize every detail, from interior finishes to fixtures and layout, to match your lifestyle. Don’t miss the chance to design your ideal home in one of Edmonton’s newest and most sought-after neighborhoods! (id:27476)

Property Highlights

MLS® Number
E4472427
Type
Single Family
Ownership Type
Freehold
Land Size
368.27 m2

Building

Building Type
House
Storeys
2.00
Square Footage
2563 sqft
Bathrooms Total
4
Bedrooms Total
5
Amenities
Ceiling - 9ft Golf Course, Playground, Schools, Shopping
Fireplace Present
Yes
Basement Type
Full (Unfinished)
Basement Features
Building Heating Type
Forced air
Heating Fuel
Building Cooling Type

Location

Learn more about this property
Listing provided by:
Century 21 All Stars Realty Ltd
MLS® number:
E4472427
Agent:
Jim Sidhu
*Indicates required field
Name is required
Email is required
Please enter a valid phone number (e.g., 416-111-1111).