18289 93 Av Nw, Edmonton, Alberta T5T 1V2

Listed for:
$249,900
3 beds
2 baths
Listed 10 days ago
Row / Townhouse for rent: 18289 93 Av Nw, Edmonton, Alberta T5T 1V2

View all 52 photos

About

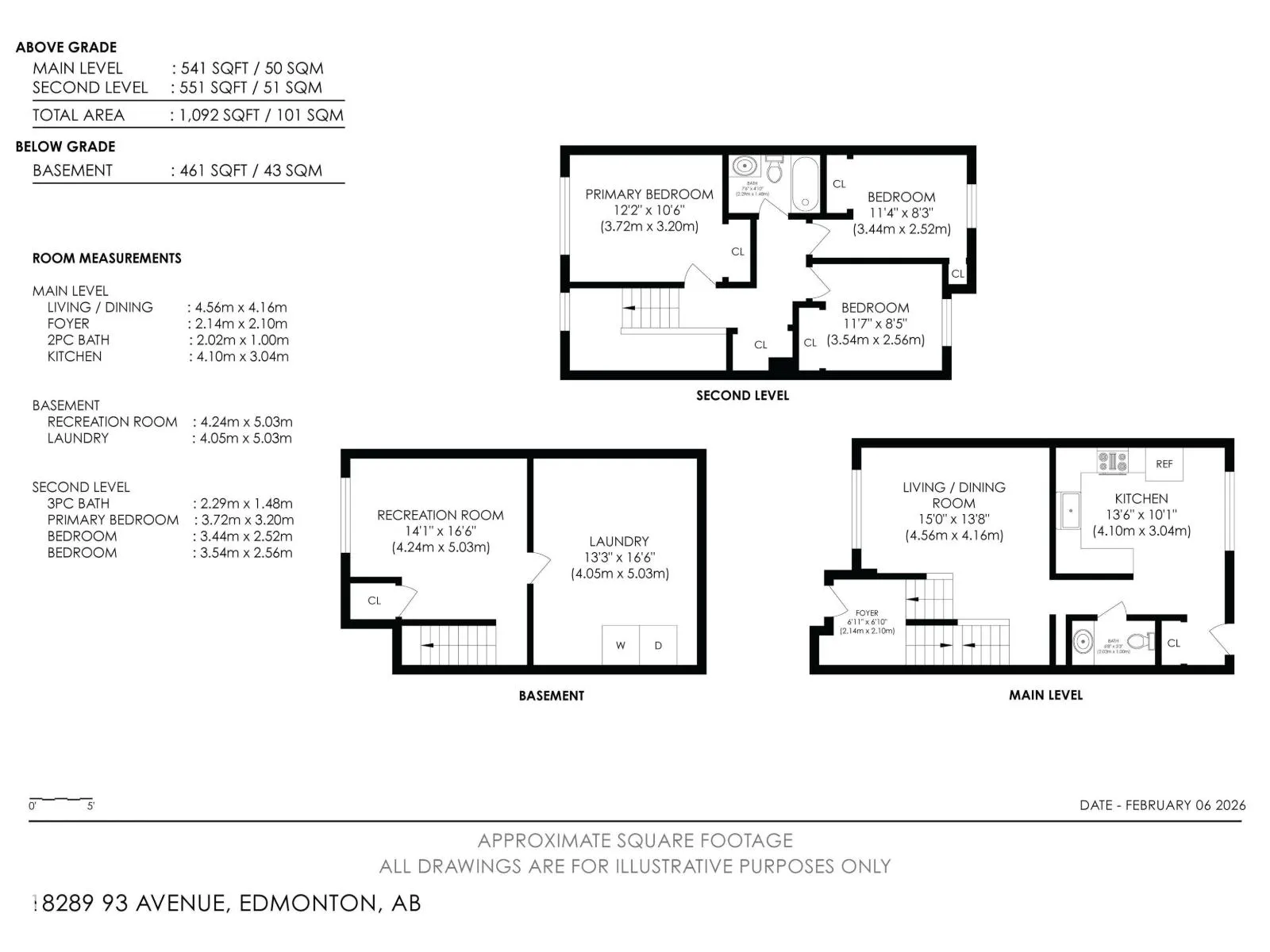
Welcome to this townhouse condo located in a well-maintained, family-friendly complex with low condo fees. Offering a fenced yard that faces the interior courtyard, this home provides a great outdoor space with added privacy. The main floor features a functional layout with a bright living room, kitchen with granite countertops, and a convenient half bath. Upstairs you’ll find three bedrooms and a full bathroom, offering plenty of space for families or guests. The basement adds additional living space with a cozy family room and ample storage throughout. Ideally situated close to schools, shopping, and everyday amenities, this property presents an excellent opportunity for buyers looking to personalize a home and build equity in a desirable location. ALL this home needs is YOU! (id:27476)

Property Highlights

MLS® Number
E4472429
Type
Single Family
Maintenance Fee
236.98
Ownership Type
Condominium/Strata
Land Size
258.09 m2

Building

Building Type
Row / Townhouse
Storeys
2.00
Square Footage
1087 sqft
Bathrooms Total
2
Bedrooms Total
3
Amenities
Playground, Public Transit, Schools, Shopping
Fireplace Present
No
Basement Type
Full (Finished)
Basement Features
Building Heating Type
Forced air
Heating Fuel
Building Cooling Type

Location

Learn more about this property
Listing provided by:
Exp Realty
MLS® number:
E4472429
Agent:
David C. St. Jean
*Indicates required field
Name is required
Email is required
Please enter a valid phone number (e.g., 416-111-1111).