10821 209 St Nw, Edmonton, Alberta T5S 1Z7

Listed for:
$15,000
0 beds
0 baths
Listed 9 days ago
10821  209 St Nw, Edmonton, Alberta T5S 1Z7

View all 26 photos

About

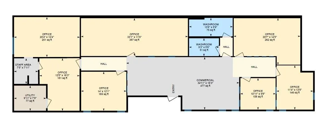
Now available for lease is a highly functional industrial facility designed for logistics, transport, and operationally driven businesses that need strong office presence paired with proper loading, shop access, and yard flexibility.The offering includes 2,622 SF of well-laid-out office space, featuring three large boardrooms, four private offices, a staff lounge, storage and utility room, and a common shared area suitable for team collaboration or reception. This is not surplus office space. It is built to support real operations, management, and dispatch.On the industrial side, the property offers a 2,102 SF loading dock area and a shared drive-through bay with 16-foot overhead doors on both sides. One door on one side and two on the other allow for efficient circulation, loading, and vehicle movement. A dedicated shop office further supports day-to-day operations.In addition, the property sits on approximately 2.8 acres of shared land, providing valuable yard space that can be used by the tenant for trailer parking, equipment storage, or operational overflow, a key advantage for transport and logistics users.Strategically located between Highway 16 and 16A, with quick access to Anthony Henday Drive and Winterburn Road, this West Edmonton location is ideal for businesses that rely on efficient transportation, regional access, and logistics flow.Available immediately at $15,000 per month gross, this is a rare opportunity to secure a turnkey industrial space in a supply-constrained market.Ideal for transport, logistics, service, or distribution-based users seeking function, access, and speed to market. (id:27476)

Property Highlights

MLS® Number
44292899
Type
Industrial
Land Size
122416.3559 sqft|1 - 3 acres

Building

Square Footage
7700 sqft
Fireplace Present
No
Basement Type
Basement Features
Building Heating Type
Heating Fuel
Building Cooling Type

Location

Learn more about this property
Listing provided by:
Century 21 Bravo Realty
MLS® number:
44292899
Agent:
Ricky Aujla
*Indicates required field
Name is required
Email is required
Please enter a valid phone number (e.g., 416-111-1111).