12742 Fort Rd Nw, Edmonton, Alberta T5A 1A6

Listed for:
$588,888
4 beds
3 baths
Listed 8 days ago
House for rent: 12742 Fort Rd Nw, Edmonton, Alberta T5A 1A6

View all 62 photos

About

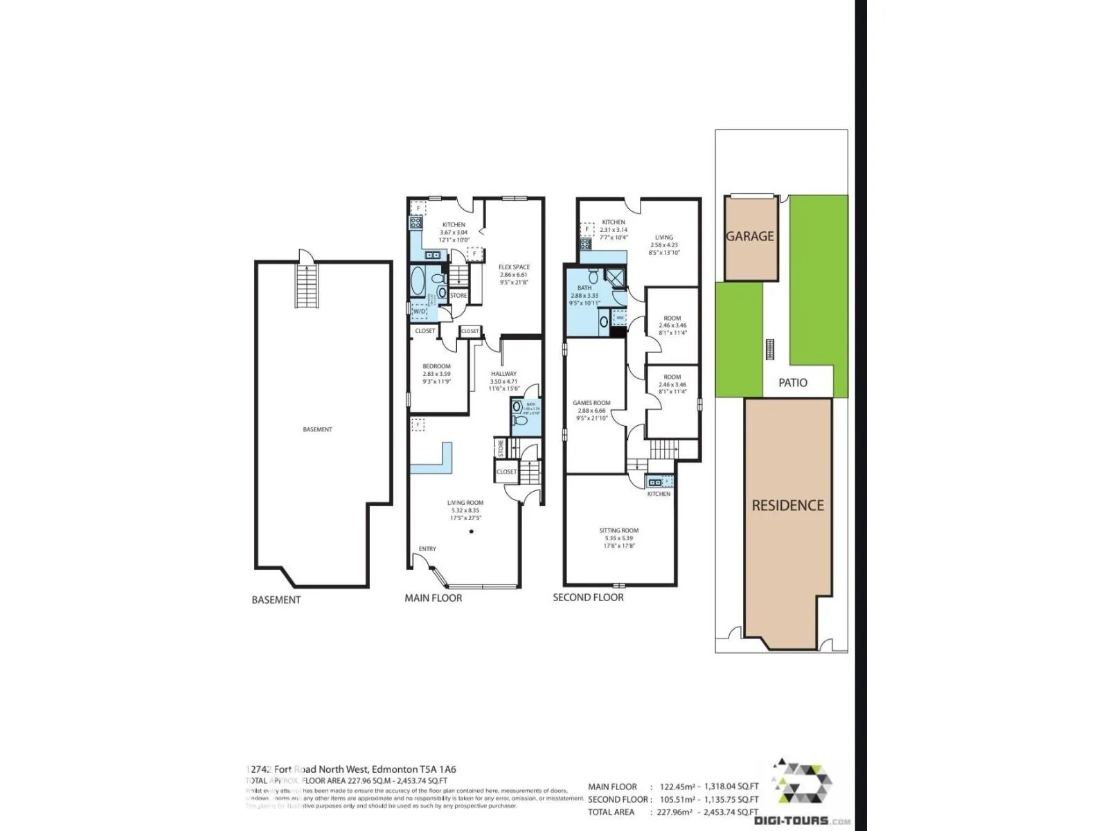
Opportunity meets flexibility in this solid freestanding building on Fort Road. Priced under $600K, this is a rare chance to secure a mixed use asset in a corridor seeing active redevelopment and long term growth. This property is larger than it appears, offering over 2400 sqft above grade with multiple configurations. The upper level can function as a 3 or 4 bedroom residence, office, or shared living setup. The main floor is ideally suited for a daycare, personal services business, event space, or secondary residential unit. Currently set up as a turnkey meeting space, the property includes appliances, furnishings, and equipment, allowing for immediate use or rental income with minimal upfront costs. The lot adds another layer of value with a large yard and 16 foot gate, providing secure space for RV parking, trailers, work vehicles, or additional income strategies such as storage or fleet parking. Positioned in a high exposure location with strong accessibility, this property is ideal for investors. (id:27476)

Property Highlights

MLS® Number
E4474019
Type
Single Family
Ownership Type
Freehold

Building

Building Type
House
Storeys
1.50
Square Footage
2454 sqft
Bathrooms Total
3
Bedrooms Total
4
Amenities
Ceiling - 10ft Playground, Public Transit, Schools, Shopping
Fireplace Present
No
Basement Type
Full (Finished)
Basement Features
Building Heating Type
Forced air
Heating Fuel
Building Cooling Type

Location

Learn more about this property
Listing provided by:
Exp Realty
MLS® number:
E4474019
Agent:
Errol J. Scott
*Indicates required field
Name is required
Email is required
Please enter a valid phone number (e.g., 416-111-1111).