1128 Knottwood Rd E Nw, Edmonton, Alberta T6K 2J8

Listed for:
$213,900
3 beds
1 baths
Listed 11 days ago
Row / Townhouse for rent: 1128 Knottwood Rd E Nw, Edmonton, Alberta T6K 2J8

View all 31 photos

About

Impeccably maintained three bedroom townhome in the highly convenient community of Ekota. This home shows pride of ownership throughout and offers a warm, inviting layout ideal for comfortable everyday living. The beautifully updated kitchen features rich chocolate cabinetry, ceramic tile flooring, a contemporary backsplash and quality stainless steel appliances. The spacious living room is anchored by a charming wood burning fireplace and enjoys an abundance of natural light from the large window overlooking the yard. The upper level provides three generously sized bedrooms along with a well appointed four piece bathroom designed with a spa inspired feel. The complex is professionally managed and offers low condo fees, making it an excellent option for both homeowners and investors. Significant exterior upgrades have been completed in recent years, improvements include updated hardyboard siding brand new windows and new roof. (id:27476)

Property Highlights

MLS® Number
E4479127
Type
Single Family
Maintenance Fee
400.65
Ownership Type
Condominium/Strata
Land Size
230.02 m2
Parking Space Total
1

Building

Building Type
Row / Townhouse
Storeys
2.00
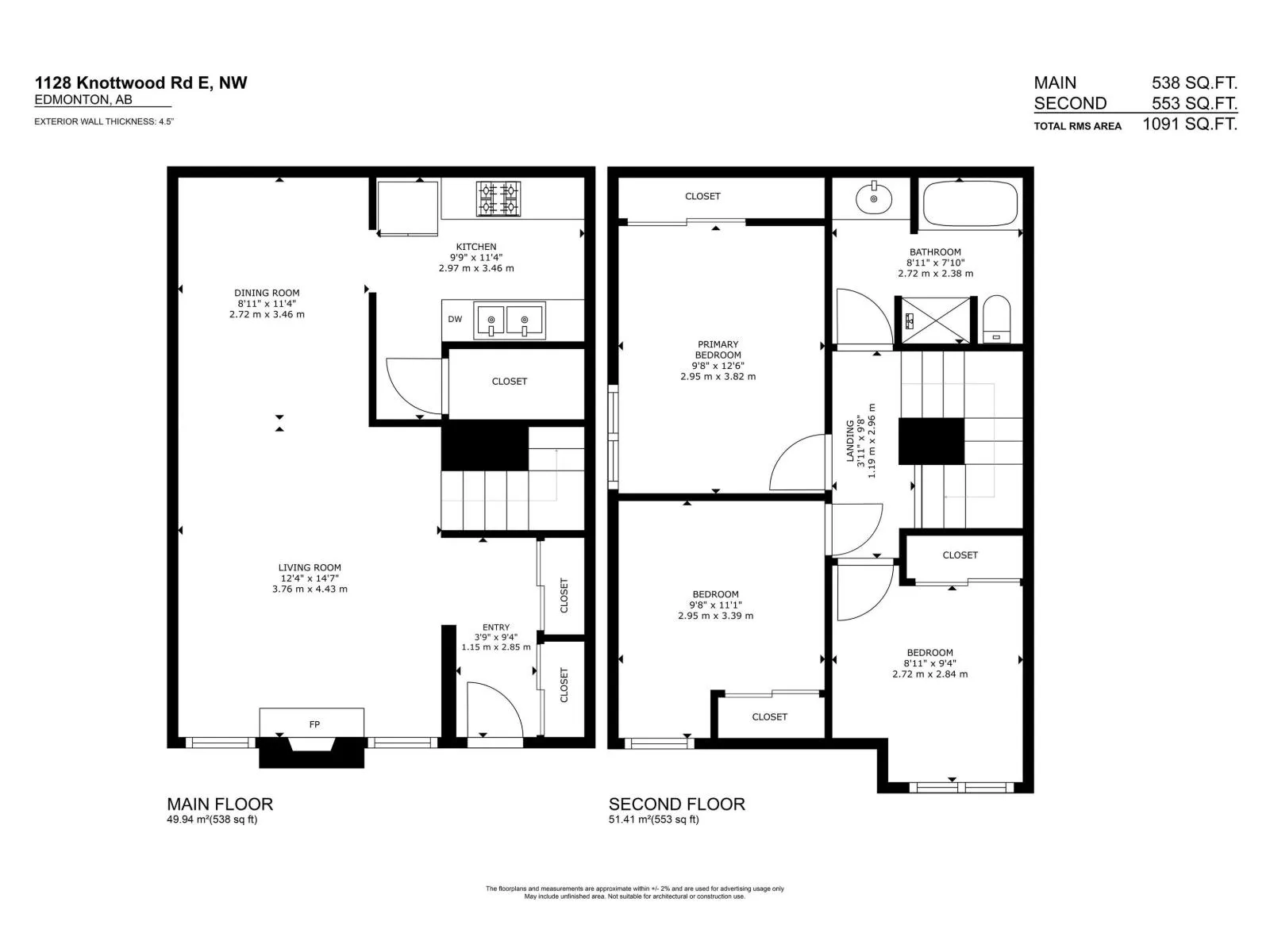
Square Footage
1091 sqft
Bathrooms Total
1
Bedrooms Total
3
Fireplace Present
No
Basement Type
Full (Unfinished)
Basement Features
Building Heating Type
Forced air
Heating Fuel
Building Cooling Type

Location

Learn more about this property
Listing provided by:
REMAX River City
MLS® number:
E4479127
Agent:
Samuel Ireland
*Indicates required field
Name is required
Email is required
Please enter a valid phone number (e.g., 416-111-1111).