3, 36 Windridge Road, Exshaw, Alberta T0L 2C0

Listed for:
$759,000
3 beds
4 baths
Listed 24 days ago
Row / Townhouse for rent: 3, 36 Windridge Road, Exshaw, Alberta T0L 2C0

View all 50 photos

Learn more about this property
Listing provided by:
RE/MAX Alpine Realty
MLS® number:
A2262595
Agent:
Jessica P. Stoner
*Indicates required field
Name is required
Email is required
Please enter a valid phone number (e.g., 416-111-1111).

About

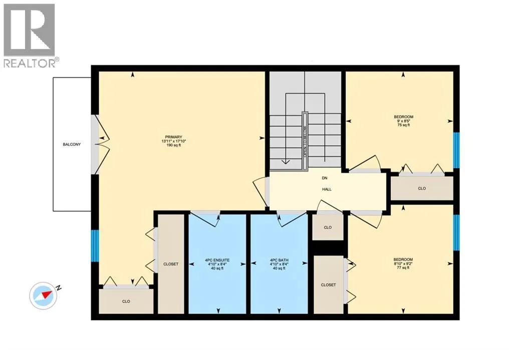
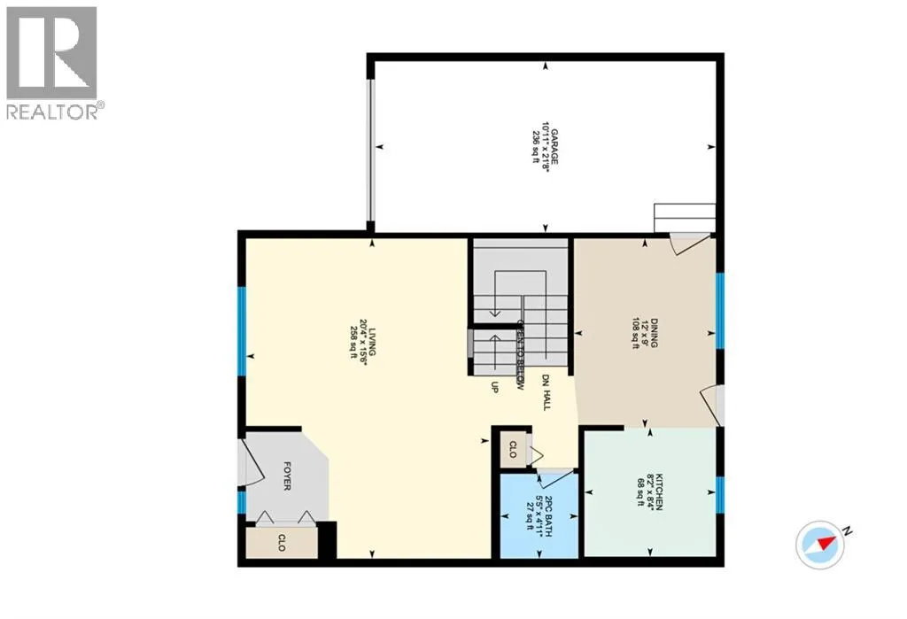
Welcome to this bright and beautifully designed end-unit townhouse offering over 1,900 sq ft of versatile living space in one of Canmore’s most family-friendly suburb communities called Exshaw. Backing onto nature and steps from scenic trails, parks, and schools, this 3-level home is the perfect blend of comfort, style, and value. The main floor features a sun-filled open living room, ideal for both everyday living and entertaining. The main floor also has a very convenient 2 pc bath right off the living room. Enjoy stunning mountain views, large windows, and a charming kitchen that flows seamlessly into the warm dining area. Upstairs, you’ll find 3 spacious bedrooms and 2 full bathrooms, including a bright primary suite. The fully developed lower level offers a private space ideal for a roommate, guest suite, or use as the family theatre or rec-room. The lower level also has its own full bathroom, and numerous other creative options. With 4 bathrooms in total, there’s room for everyone. Outside, the fully fenced backyard provides a peaceful retreat with room to relax or play, and the attached single garage adds everyday convenience. With direct access to nature, schools, and amenities, this home offers exceptional livability and value. Call to book a viewing today! (id:27476)

Property Highlights

MLS® Number
A2262595
Type
Single Family
Maintenance Fee
385.00
Ownership Type
Bare Land Condo/Strata
Land Size
278 m2|0-4,050 sqft
Parking Space Total
3

Building

Building Type
Row / Townhouse
Storeys
3.00
Square Footage
1311 sqft
Bathrooms Total
4
Bedrooms Above Ground
3
Bedrooms Total
3
Amenities
Park, Playground, Schools, Shopping
Exterior Finish
Wood siding
Fireplace Present
No
Basement Type
Full (Finished)
Basement Features
Building Heating Type
Forced air
Heating Fuel
Natural gas
Building Cooling Type
None

Location