130 Athabasca Place, Fort McMurray, Alberta T9J 1B4

Listed for:
$289,900
3 beds
1 baths
Listed 119 days ago
House for rent: 130 Athabasca Place, Fort McMurray, Alberta T9J 1B4

View all 30 photos

About

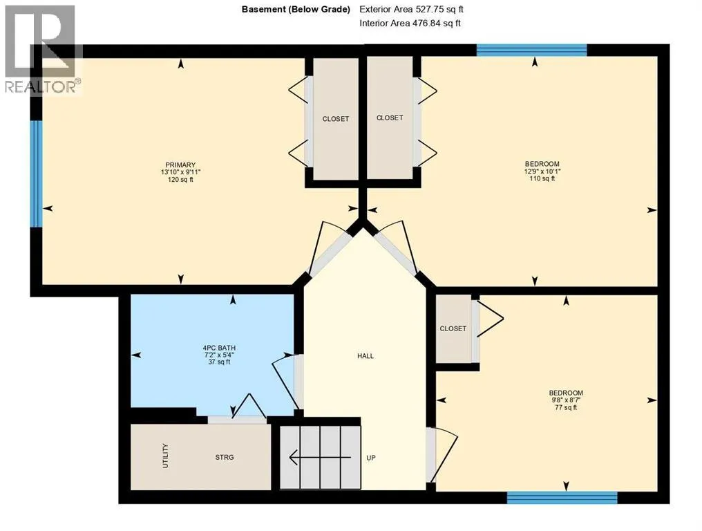
Welcome to 130 Athabasca Place — an inviting home in the heart of Abasand, offering comfort and unbeatable value. Perfectly located close to playgrounds, schools, walking trails, and all amenities, this home provides both convenience and a strong sense of community in a quiet cul-de-sac. Step inside to discover bright, open-concept living and dining areas designed for easy entertaining, with sliding doors leading to the yard — the perfect spot to enjoy your morning coffee or summer barbecues. The living room’s charming bay window fills the space with natural light, creating a warm and welcoming atmosphere. The kitchen offers ample cabinetry, a breakfast bar, and a functional layout that makes everyday cooking a breeze. The basement features three spacious bedrooms, each with generous sized closets as well as a full bathroom for your convenience. Outside, the massive, fully fenced backyard is ready for gatherings, outdoor play, or even future garage plans — complete with a shed for extra storage and a concrete driveway to meet your parking needs. This property is full of potential and an excellent opportunity for anyone looking to add personal touches at an affordable price point. Don’t miss the chance to make this lovely Abasand home your own! Check out the photos, floor plans and 3D tour, and call today to book your personal viewing. (id:27476)

Property Highlights

MLS® Number
A2265215
Type
Single Family
Community Name
Abasand
Ownership Type
Freehold
Land Size
5982.67 sqft|4,051 - 7,250 sqft
Parking Space Total
2

Building

Building Type
House
Square Footage
539 sqft
Bathrooms Total
1
Bedrooms Total
3
Amenities
Playground, Schools
Exterior Finish
Vinyl siding
Fireplace Present
No
Basement Type
Full (Finished)
Basement Features
Building Heating Type
Forced air
Heating Fuel
Natural gas
Building Cooling Type
None

Location

Learn more about this property
Listing provided by:
ROYAL LEPAGE BENCHMARK
MLS® number:
A2265215
Agent:
Jennifer Fahey
*Indicates required field
Name is required
Email is required
Please enter a valid phone number (e.g., 416-111-1111).