905 9 Avenue Ne, Fox Creek, Alberta T0H 1P0

Listed for:
$399,900
3 beds
2 baths
Listed 31 days ago
House for rent: 905 9 Avenue Ne, Fox Creek, Alberta T0H 1P0

View all 14 photos

Learn more about this property
Listing provided by:
RE/MAX ADVANTAGE (WHITECOURT)
MLS® number:
A2098720
Agent:
Phone:
*Indicates required field
Name is required
Email is required
Please enter a valid phone number (e.g., 416-111-1111).

About

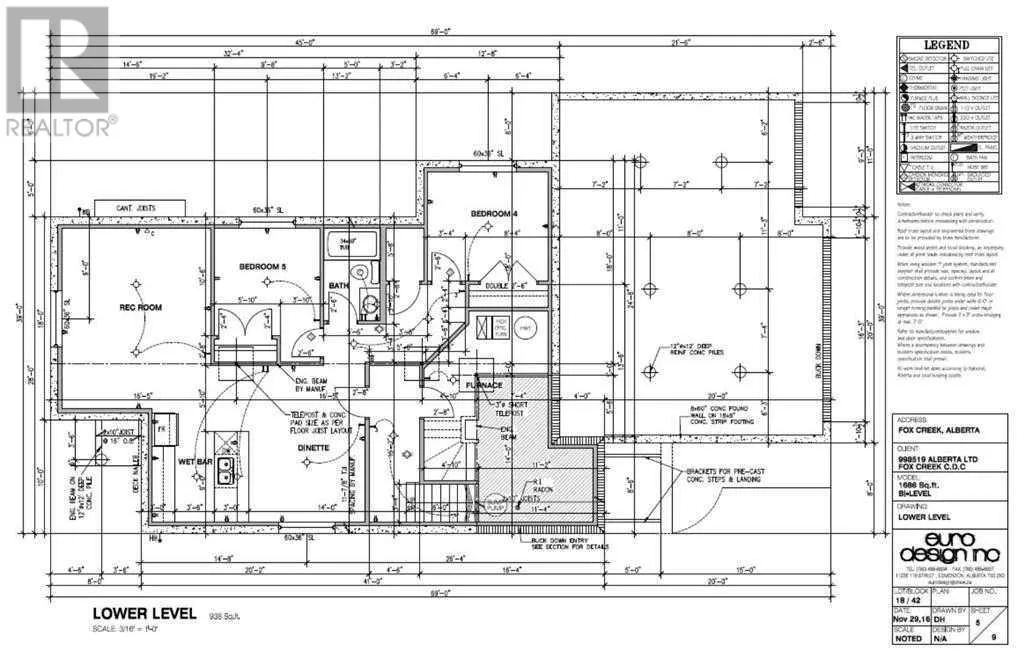
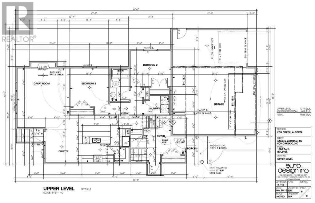
THE AINSLEY ~ A BEAUTIFUL HOME w/ TRIPLE GARAGE plus a separate entrance to lower level! This 1686 sq. ft. modified bi-level with triple car attached garage is READY FOR YOU! This never-lived-in home's floorplan shows a main floor w/spacious foyer, good-sized kitchen w/corner pantry, dining room, living room, 2 bedrooms & a full 4 piece bathroom. The master bedroom suite is located up a few steps to the top level & showcases a gorgeous master ensuite bathroom finished w/a double vanity, soaker tub & a perfect walk-in shower. The triple car garage provides loads of space for a workshop plus vehicle & quad/trike storage. Outside the home, the exterior has been finished w/stucco for a different-looking exterior and improved insulation value. There's also a dedicated door for a separate entrance to the basement in case you want to add a revenue suite. Located in a quiet residential neighbourhood with little through traffic, this home is very close to Silver Birch Golf Course, Fox Creek School, the walking trail system & the greenbelt! (id:27476)

Property Highlights

MLS® Number
A2098720
Type
Single Family
Ownership Type
Freehold
Land Size
7398 sqft|7,251 - 10,889 sqft
Parking Space Total
3

Building

Building Type
House
Square Footage
1686 sqft
Bathrooms Total
2
Bedrooms Above Ground
3
Bedrooms Total
3
Amenities
Golf Course, Park, Playground, Recreation Nearby, Schools
Exterior Finish
Stucco
Fireplace Present
Yes
Basement Type
Basement Features
Building Heating Type
Central heating, Other, Forced air
Heating Fuel
Natural gas
Building Cooling Type
None

Location