103, 501 3 Street Se, Fox Creek, Alberta T0H 1P0

Listed for:
$124,900
2 beds
1 baths
Listed 31 days ago
Apartment for rent: 103, 501 3 Street Se, Fox Creek, Alberta T0H 1P0

View all 10 photos

Learn more about this property
Listing provided by:
RE/MAX ADVANTAGE (WHITECOURT)
MLS® number:
A2219927
Agent:
Phone:
*Indicates required field
Name is required
Email is required
Please enter a valid phone number (e.g., 416-111-1111).

About

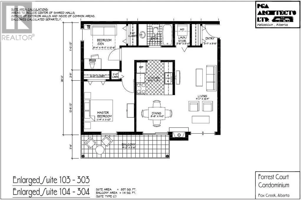
This beautiful main floor condo in Balsam Court is located in Forest Courts Condominiums, across the street from Iosegun Manor and the Health Care Center. The open-concept kitchen, dining and living room area is the perfect place to prepare meals, visit friends and family, or to watch a movie while enjoying the warmth of the Napoleon gas fireplace on cool evenings. The cabinetry throughout is light oak, solid wood with granite-look-alike countertops. Down the hallway, you will reach the master bathroom and the 2 bedrooms. There is also a linen closet in the hall, as well. The bathroom has a custom shelving unit that was installed by the builder and used for more linen storage and personal items. This suite has in-suite laundry as well, no more digging for loonies for the laundromat! You can wash and dry in your own home! Outside of the suite, the large 19'x5' attached balcony will give you a cool NW-facing place to relax after work. Toss some steaks on the BBQ if you are in the mood. The Fox Creek Greenview Multiplex is a short few blocks away, with a beautiful large swimming pool with hot tub and wandering river for aerobic exercise walking against the current. A fitness center, field house, NHL size hockey arena, Fox Creek Municipal Library, Community Resource Center, Food Bank and many other amenities fit comfortably inside the Multiplex. All in all, this is a good investment for a home or for a rental property! It is currently rented to a good tenant. Condo fees include building insurance, snow shoveling, parking lot snow removal, lawn care and landscaping. Fees also include Inside common area housekeeping and outside maintenance, plus utilities for common areas including heat, water and sewer for all condos and common areas. (id:27476)

Property Highlights

MLS® Number
A2219927
Type
Single Family
Maintenance Fee
357.00
Ownership Type
Condominium/Strata
Land Size
Unknown
Parking Space Total
2

Building

Building Type
Apartment
Storeys
3.00
Square Footage
837 sqft
Bathrooms Total
1
Bedrooms Above Ground
2
Bedrooms Total
2
Amenities
Laundry Facility Golf Course, Park, Playground, Recreation Nearby, Schools, Shopping
Exterior Finish
Concrete, Vinyl siding
Fireplace Present
Yes
Basement Type
Full
Basement Features
Building Heating Type
Central heating, Other, Forced air
Heating Fuel
Natural gas
Building Cooling Type
See Remarks

Utilities

Water
Municipal water
Power
100 Amp Service
Utility Sewer
Municipal sewage system

Room Layout

Primary Bedroom
Main level
11.75 Ft x 11.83 Ft
Dining room
Main level
8.67 Ft x 9.00 Ft
4pc Bathroom
Main level
7.08 Ft x 5.00 Ft
Living room
Main level
9.92 Ft x 16.75 Ft
Kitchen
Main level
9.00 Ft x 8.08 Ft
Bedroom
Main level
9.92 Ft x 10.50 Ft
Laundry room
Main level
3.50 Ft x 5.00 Ft
Other
Main level
3.58 Ft x 5.42 Ft
Other
Main level
19.17 Ft x 5.50 Ft

Location