Lot 27, 10174 120 Avenue, Grande Prairie, Alberta T8V 7V3

Listed for:
$427,776
0 beds
0 baths
Listed 85 days ago
Lot 27, 10174 120 Avenue, Grande Prairie, Alberta T8V 7V3

View all 2 photos

Learn more about this property
Listing provided by:
RE/MAX Grande Prairie
MLS® number:
A2030623
Agent:
Greg Dobko
*Indicates required field
Name is required
Email is required
Please enter a valid phone number (e.g., 416-111-1111).

About

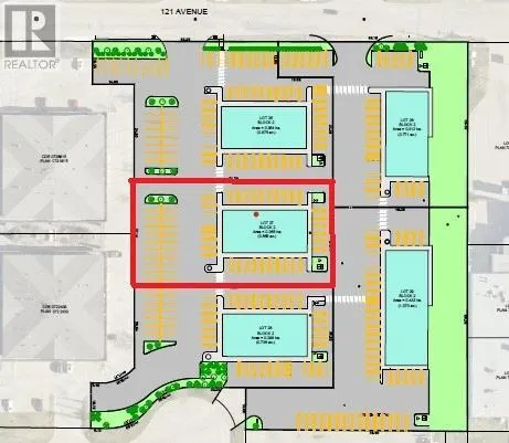
Lot 27 - Think you want your own commercial building? Don't want the hassle of buying the land, getting the services installed, prepping the base and paving? Northridge Business Center is for you!! Established business center. Five lots to choose from. All the paving is done. Services are in. And there is a 5,000 square foot building pad on each lot, ready for your building. Lot 27 is $427,776.15, plus services and roads $239,169.68, for a total of $666,945.83 plus GST. It doesn't get simpler than that!!! (id:27476)

Property Highlights

MLS® Number
A2030623
Type
Vacant Land
Community Name
Northridge
Ownership Type
Freehold
Land Size
28518.4 sqft|21,780 - 32,669 sqft (1/2 - 3/4 ac)

Building

Fireplace Present
No
Basement Type
Basement Features
Building Heating Type
Heating Fuel
Building Cooling Type

Location