9820 100 Avenue, Grande Prairie, Alberta T8V 0T8

Listed for:
$3,400,000
0 beds
0 baths
Listed 317 days ago
Offices for rent: 9820 100 Avenue, Grande Prairie, Alberta T8V 0T8

View all 15 photos

Learn more about this property
Listing provided by:
RE/MAX Grande Prairie
MLS® number:
A2184190
Agent:
Cord Spero
*Indicates required field
Name is required
Email is required
Please enter a valid phone number (e.g., 416-111-1111).

About

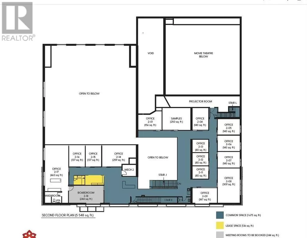
This is an incredible opportunity to purchase 26,205 SF of professional office space that has undergone a complete renovation in the heart of Grande Prairie. This former movie theater turned office, is a unique landmark property centrally located in the Grande Prairie area. It is currently being offered for sale at a fraction of the cost of new construction. The building has frontage exposure on 100 Avenue with 28 designated parking stalls and plenty of public parking in the vicinity. It is comprised of a spacious reception area, 32 designated offices, two boardrooms, staff lounge, two bull pen area's which can easily accommodate up to 26 additional work area's as your business continues to grow and a fully functional theater. This property literally has it all and should not be overlooked. Call your Commercial Realtor® today to book a showing. (id:27476)

Property Highlights

MLS® Number
A2184190
Type
Office
Community Name
Central Business District
Land Size
1459.3 m2|10,890 - 21,799 sqft (1/4 - 1/2 ac)

Building

Building Type
Offices
Square Footage
26205 sqft
Fireplace Present
No
Basement Type
Basement Features
Building Heating Type
Heating Fuel
Building Cooling Type

Location

Community Spotlight: Homes For sale in Your Neighborhood