205, 11402 100 Street, Grande Prairie, Alberta T8V 2N5

Listed for:
$556
0 beds
0 baths
Listed 32 days ago
Offices for rent: 205, 11402 100 Street, Grande Prairie, Alberta T8V 2N5

View all 7 photos

Learn more about this property
Listing provided by:
RE/MAX Grande Prairie
MLS® number:
A2225967
Agent:
Bobbi Dawson
*Indicates required field
Name is required
Email is required
Please enter a valid phone number (e.g., 416-111-1111).

About

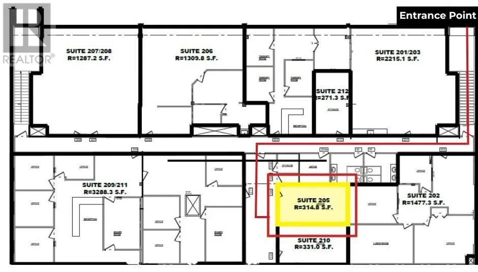
Discover an ideal office space for lease, perfectly suited for professionals seeking a private and quiet work environment. This 315 sq. ft. upstairs office space offers excellent exposure while maintaining a high level of privacy. The base rent of this unit is priced to be $14.00 per square foot with an additional cost of $7.16 making the total monthly rent come to an affordable $555.45. Ready for immediate possession, this space is perfect for solo entrepreneurs or small business owners looking to move in without delay. Don’t miss out—Book a viewing today! (id:27476)

Property Highlights

MLS® Number
A2225967
Type
Office
Community Name
VLA Montrose
Land Size
Unknown

Building

Building Type
Offices
Square Footage
315 sqft
Fireplace Present
No
Basement Type
Basement Features
Building Heating Type
Heating Fuel
Building Cooling Type

Location

Street Spotlight - For lease