111, 8716 108 Street, Grande Prairie, Alberta T8V 4C7

Listed for:
$594,900
0 beds
0 baths
Listed 60 days ago
Offices for rent: 111, 8716 108 Street, Grande Prairie, Alberta T8V 4C7

View all 27 photos

Learn more about this property
Listing provided by:
Royal LePage - The Realty Group
MLS® number:
A2252987
Agent:
Mitch Koll
*Indicates required field
Name is required
Email is required
Please enter a valid phone number (e.g., 416-111-1111).

About

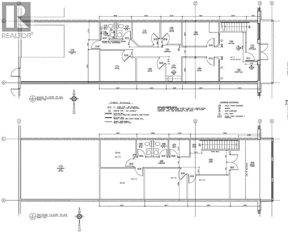
Office Condo Bay with great exposure. Features two floors of premium office space with a rear shop. Main floor office area is 1380 sqft with reception, 5 offices, two bathrooms, small kitchen and storage room. Front vestibule allows separate access upstairs to 1495 sqft of 4 offices, a large bright board room and bathroom. Also, there is a 690 sqft shop area in the rear with an over head door and small mezzanine. Currently there are tenants in two offices upstairs that have access to the board room for $775 per month gross each with two more vacant ones that could be rented, and the back shop area is rented for $1300 gross per month. All 3 current tenants would like to stay if possible. This is a great opportunity to run your office out of the main floor and have your mortgage mostly covered by the other tenants in the building and also allow you the flexibility to grow. (id:27476)

Property Highlights

MLS® Number
A2252987
Type
Office
Community Name
Richmond Industrial Park
Maintenance Fee
473.76
Ownership Type
Condominium/Strata
Land Size
Unknown

Building

Building Type
Offices
Square Footage
3565 sqft
Fireplace Present
No
Basement Type
Basement Features
Building Heating Type
Forced air
Heating Fuel
Natural gas
Building Cooling Type
Central air conditioning

Utilities

Water
Municipal water
Utility Sewer
Municipal sewage system

Location