101, 8715 109 Street, Grande Prairie, Alberta T8V 8H7

Listed for:
$18
0 beds
0 baths
Listed 35 days ago
Offices for rent: 101, 8715 109 Street, Grande Prairie, Alberta T8V 8H7

View all 37 photos

Learn more about this property
Listing provided by:
RE/MAX Grande Prairie
MLS® number:
A2261019
Agent:
Dave Pilger
*Indicates required field
Name is required
Email is required
Please enter a valid phone number (e.g., 416-111-1111).

About

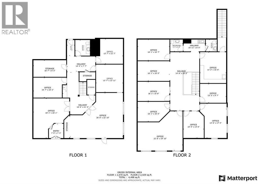
Beautiful 4498 sq ft space suitable for many different types of businesses. Originally built by a home builder to showcase their workmanship. This space feels more like a home than an office building. Gorgeous finishings throughout including quality cabinetry, granite countertops, high end trim, lighting & plumbing fixtures. The space even includes a fireplace & waterfalls in the large upstairs board room. Currently houses a therapy clinic but would be ideal for any business which requires lots of offices/rooms of varying sizes. Presently the space is configured with a total of 13 offices (2 very large spaces which could be board rooms), reception area, 3 washrooms, file/storage room, 2 kitchen areas, 3 exterior entrances. Could also accommodate a business which needs office space and a retail showroom. Basic rent is $18/sq ft = $6747/month. Additional rent is $5.90/sq ft = $2211.51. Fabulous building - TOTAL CLASS! This is a must see space. See attached Matterport tour. Or lease the entire building including the 1702 sq ft shop. (id:27476)

Property Highlights

MLS® Number
A2261019
Type
Office
Community Name
Richmond Industrial Park
Land Size
Unknown

Building

Building Type
Offices
Square Footage
4498 sqft
Exterior Finish
Aluminum siding
Fireplace Present
No
Basement Type
Basement Features
Building Heating Type
Forced air
Heating Fuel
Natural gas
Building Cooling Type
Central air conditioning

Location

Street Spotlight - For lease