106, 11039 78 Avenue, Grande Prairie, Alberta T8W 2J7

Listed for:
$11
0 beds
0 baths
Listed 2 days ago
Offices for rent: 106, 11039 78 Avenue, Grande Prairie, Alberta T8W 2J7

View all 32 photos

About

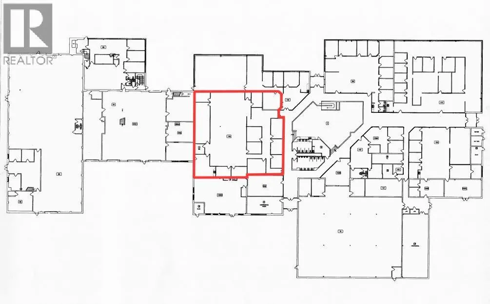
IMMEDIATE POSSESSION! This 6283 sq. ft. professional office space is located in the Swan Business Centre, in the heart of the Richmond Industrial Park, with easy access to Highway 40. The layout features 10 offices, an extra large flex space for multiple office pods & more, a large board room and a kitchenette in the private lunch room. Tenants also have access to the building’s central common-area amenity hub, featuring a kitchenette, shared seating, and a games area—ideal for breaks or informal meetings. The building has a convenient exterior entrance directly adjacent to the space, and the complex offers plenty of parking, along with the option to add outdoor storage—perfect for businesses looking for extra exterior space to complement their office needs. Turn-key and ready for immediate occupancy, this space offers an excellent opportunity to establish or grow your business. BASE RENT: $11/sq ft ($5,759.41) + ADDITIONAL RENT: $9.01/sq ft. ($4,717.48) TOTAL RENT: $10,476.89 + GST. Utilities included. Contact your Commercial Realtor today to arrange a viewing! (id:27476)

Property Highlights

MLS® Number
A2286837
Type
Office
Community Name
Richmond Industrial Park
Land Size
Unknown

Building

Building Type
Offices
Square Footage
6283 sqft
Fireplace Present
No
Basement Type
Basement Features
Building Heating Type
Heating Fuel
Building Cooling Type
Central air conditioning

Location

Learn more about this property
Listing provided by:
Grassroots Realty Group Ltd.
MLS® number:
A2286837
Agent:
Morgan Maclean
*Indicates required field
Name is required
Email is required
Please enter a valid phone number (e.g., 416-111-1111).