5521 47th Street, High Prairie, Alberta T0G 1E0

Listed for:
$67,900
3 beds
3 baths
Listed 34 days ago
House for rent: 5521 47th Street, High Prairie, Alberta T0G 1E0

View all 21 photos

Learn more about this property
Listing provided by:
Grassroots Realty Group - High Prairie
MLS® number:
A2224203
Agent:
Jason Shewchuk
*Indicates required field
Name is required
Email is required
Please enter a valid phone number (e.g., 416-111-1111).

About

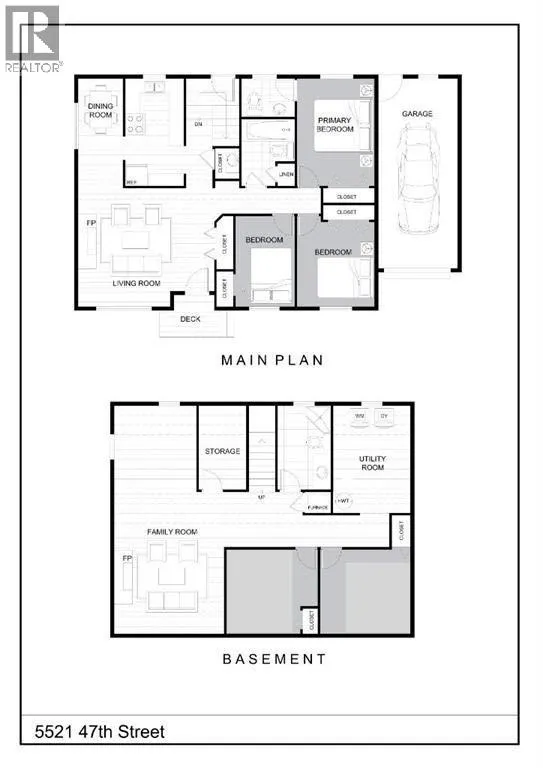
This 1,170 sq ft bungalow sits on a quiet dead-end street, offering a peaceful retreat with the added bonus of a fenced backyard—perfect for privacy, kids, or pets. The main level features three bedrooms, including a primary with a convenient two-piece ensuite, while the lower level provides two additional rooms, a den, laundry area, and a three-piece bathroom, offering flexible living space for a growing family or potential rental income. The attached single garage adds practicality, and the home’s functional layout ensures comfortable living. Sold "as is, where is," this property presents an excellent opportunity for homeowners or investors looking for a well-located home with room to personalize. Don’t miss the chance to make this bungalow your own! (id:27476)

Property Highlights

MLS® Number
A2224203
Type
Single Family
Ownership Type
Freehold
Land Size
7680 sqft|7,251 - 10,889 sqft
Parking Space Total
4

Building

Building Type
House
Storeys
1.00
Square Footage
1170 sqft
Bathrooms Total
3
Bedrooms Above Ground
3
Bedrooms Total
3
Amenities
Recreation Nearby, Schools
Exterior Finish
Brick, Stucco
Fireplace Present
Yes
Basement Type
Full (Finished)
Basement Features
Building Heating Type
Forced air
Heating Fuel
Building Cooling Type
None

Location