393 Rivergrove Chase W, Lethbridge, Alberta T1K 8E9

Listed for:
$699,900
4 beds
4 baths
Listed 34 days ago
House for rent: 393 Rivergrove Chase W, Lethbridge, Alberta T1K 8E9

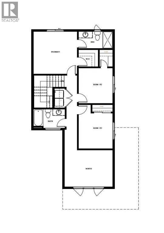
View all 14 photos

About

The Parkside! This is an exceptional brand-new two-storey built with integrity by Custom Quality Build, with possession expected March 1, 2026. Thoughtfully designed with a fully finished layout from top to bottom, this property delivers the kind of space, functionality, and finish that your looking for. The main floor is bright and open, anchored by a stunning feature fireplace, full height cabinetry, and seamless flow for everyday living and entertaining. Granite countertops carry throughout the home, tying together the upscale feel from the kitchen to the bathrooms. You’ll also appreciate the front attached double garage, already plumbed for heat, making winter mornings that much easier.Upstairs offers the layout families actually want: upper laundry, a full bathroom, a generous bonus family room, and three well-sized bedrooms. The primary suite is a standout, featuring a custom 5-piece ensuite and a walk-in closet.Downstairs is fully developed with 9" ceilings, and impressively versatile—complete with a bedroom, a family room, wet bar, utility and storage space, a full bathroom, secondary laundry, and access via a separate side entry for added flexibility and future potential.Set on a quiet close and just steps from the Riverstone Dog Park. This home combines modern style with an intelligent, functional floor plan in a location that fits real life.Brand-new, fully finished, and nearly ready—homes like this do not last. If you want to secure a March possession and avoid competing once it hits the wider market, call your agent to book your private showing now and get ahead of the rush. *Rendering shown. Final finishes, colors, and details may vary* (id:27476)

Property Highlights

MLS® Number
A2276220
Type
Single Family
Community Name
Riverstone
Ownership Type
Freehold
Land Size
4970 sqft|4,051 - 7,250 sqft
Parking Space Total
4

Building

Building Type
House
Storeys
2.00
Square Footage
1670 sqft
Bathrooms Total
4
Bedrooms Above Ground
3
Bedrooms Total
4
Amenities
Park
Fireplace Present
Yes
Basement Type
Full (Finished)
Basement Features
Separate entrance
Building Heating Type
Forced air
Heating Fuel
Building Cooling Type
Central air conditioning

Location

Learn more about this property
Listing provided by:
Onyx Realty Ltd.
MLS® number:
A2276220
Agent:
Hayley Lauinger
*Indicates required field
Name is required
Email is required
Please enter a valid phone number (e.g., 416-111-1111).