2030 Strachan Road Se, Medicine Hat, Alberta T1B 3M6

Listed for:
$25
0 beds
0 baths
Listed 64 days ago
2030 Strachan Road Se, Medicine Hat, Alberta T1B 3M6

View all 3 photos

Learn more about this property
Listing provided by:
RE/MAX MEDALTA REAL ESTATE
MLS® number:
A2072607
Agent:
Garry Ruff
*Indicates required field
Name is required
Email is required
Please enter a valid phone number (e.g., 416-111-1111).

About

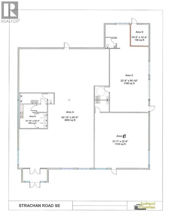
Great location in Southlands close to shopping, highway, and other mixed use properties. Building has easy access and plenty of dedicated parking. Property is being divded into 3 separate units, each with washroom facilities. See photos for floorplan details. Area A is available for lease at $30/sq ft and is 3,080 sq ft plus 2 washrooms. Area B is available for lease at $29/sq ft and is 1,132 sq ft. Area C is available to lease for $25/sq ft and are a total of 1,188 sq ft. Call your favourite realtor for more information or to set up a tour! (id:27476)

Property Highlights

MLS® Number
A2072607
Type
Business
Community Name
Southland
Ownership Type
Condominium/Strata
Land Size
Unknown

Building

Square Footage
5507 sqft
Fireplace Present
No
Basement Type
Basement Features
Building Heating Type
Heating Fuel
Building Cooling Type

Utilities

Water
Municipal water
Utility Sewer
Municipal sewage system

Location