1137 & 1139 Kingsway Avenue Se, Medicine Hat, Alberta T1A 2Y1

Listed for:
$5,000
0 beds
0 baths
Listed 76 days ago
Commercial Mix for rent: 1137 & 1139 Kingsway Avenue Se, Medicine Hat, Alberta T1A 2Y1

View all 49 photos

Learn more about this property
Listing provided by:
CIR REALTY
MLS® number:
A2254501
Agent:
Jen Boyle
*Indicates required field
Name is required
Email is required
Please enter a valid phone number (e.g., 416-111-1111).

About

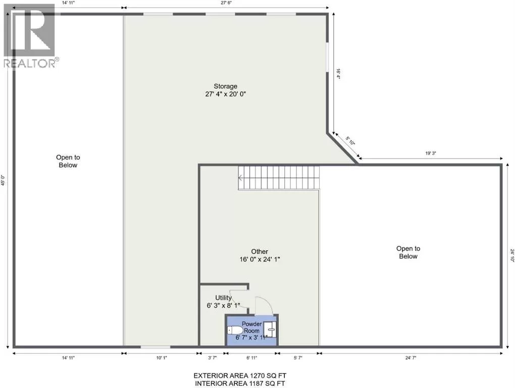
Welcome to 1137 & 1139 Kingsway Ave SE! This is a unique opportunity to lease a mixed-use property that can be divided into two spaces, located on a high-traffic street for excellent visibility. Previously an automotive service center, this property is well-equipped for a variety of business ventures, thanks to its expansive layout, ample parking, and versatile spaces.The commercial property features an impressive 5,827 sq. ft. above grade. The main floor offers 4,557 sq. ft., including multiple shop bays, service areas, and workspaces, making it ideal for automotive services or adaptable for other business needs such as retail, workshops, or office space. Additionally, the upper floor provides 1,270 sq. ft. of storage and utility rooms, perfect for inventory, tools, or backend operations. With a total of 7 overhead doors, ranging from 8x8 to 12x12, the property offers endless occupancy opportunities. A key highlight is the convenience of off-street parking, providing easy access for both customers and staff. With plenty of parking space, you can accommodate your clients’ needs without congestion, making it ideal for customer-facing businesses. Located in the thriving SE Kingsway area, this property is designed for ambitious entrepreneurs or investors seeking maximum versatility and potential. Discover the endless possibilities at 1137 & 1139 Kingsway Ave SE and imagine your business thriving in this one-of-a-kind property! (id:27476)

Property Highlights

MLS® Number
A2254501
Type
Other
Community Name
River Flats
Ownership Type
Freehold
Land Size
Unknown
Parking Space Total
13

Building

Building Type
Commercial Mix
Square Footage
5827 sqft
Fireplace Present
No
Basement Type
Basement Features
Building Heating Type
Forced air
Heating Fuel
Natural gas
Building Cooling Type
Central air conditioning

Location