237 7 Street Sw, Medicine Hat, Alberta T1A 4K2

Listed for:
$349,999
4 beds
2 baths
Listed 30 days ago
House for rent: 237 7 Street Sw, Medicine Hat, Alberta T1A 4K2

View all 43 photos

About

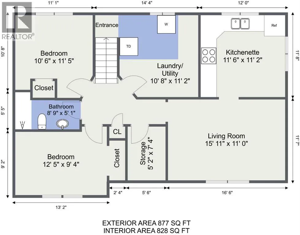
Welcome to the perfect starter home or income-generating property! This charming 950 sq. ft. raised bungalow offers exceptional versatility, featuring a registered legal 877 sq. ft. basement suite and an oversized 24' x 26' detached garage. Ideally situated on the sought-after Southwest Hill, you’ll enjoy convenient access to a wide range of amenities, making this an excellent opportunity for both homeowners and investors.Step inside to a warm and inviting main floor filled with natural light from a large feature window. The living space is both comfortable and functional, flowing seamlessly into a well-designed kitchen with easy access to the laundry area and rear entrance. Two generously sized bedrooms and a full bathroom complete the main level.Downstairs, the fully updated legal suite provides outstanding flexibility, perfect for extended family living or rental income. This bright and spacious lower level includes two additional bedrooms, a full kitchen, a comfortable living area, and large windows that create an open, welcoming atmosphere.Outside, the fully fenced yard offers a private retreat with a concrete patio ideal for relaxing or entertaining. The detached garage, along with a paved parking pad, ensures ample parking and storage options.With its flexible layout, strong income potential, and prime location, this property presents an incredible opportunity to own a home that truly works for you. (id:27476)

Property Highlights

MLS® Number
A2293578
Type
Single Family
Community Name
SW Hill
Ownership Type
Freehold
Land Size
6250 sqft|4,051 - 7,250 sqft
Parking Space Total
6

Building

Building Type
House
Storeys
1.00
Square Footage
950 sqft
Bathrooms Total
2
Bedrooms Above Ground
2
Bedrooms Total
4
Amenities
Playground, Recreation Nearby, Schools, Shopping
Fireplace Present
No
Basement Type
Full (Finished)
Basement Features
Separate entrance, Suite
Building Heating Type
Forced air
Heating Fuel
Building Cooling Type
Central air conditioning

Location

Learn more about this property
Listing provided by:
SOURCE 1 REALTY CORP.
MLS® number:
A2293578
Agent:
Norbert Klaiber
*Indicates required field
Name is required
Email is required
Please enter a valid phone number (e.g., 416-111-1111).