5366 Southlands Drive Se, Medicine Hat, Alberta T1B 0G4

Listed for:
$569,900
5 beds
4 baths
Listed 7 days ago
Duplex for rent: 5366 Southlands Drive Se, Medicine Hat, Alberta T1B 0G4

View all 7 photos

About

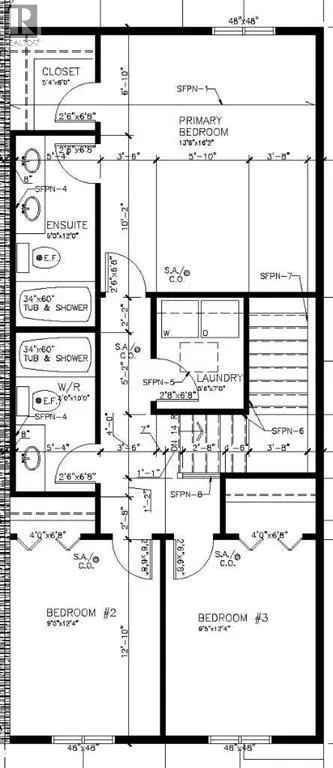
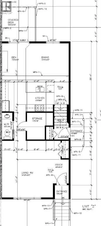
Welcome to this brand new half duplex built by New Tab Homes and DP76 Construction, offering 1,782 sq. ft. of thoughtfully designed living space plus a fully developed legal basement suite. This modern home features 3 bedrooms and 2.5 bathrooms above grade, along with a 2 bedroom, 1 bathroom secondary suite; perfect for generating passive income or accommodating extended family. Estimated completion is set for the end of May 2026, so there is still time to customize on colors and finishings. The main floor showcases a bright and functional layout, complete with a spacious living room, stylish kitchen, dining area, den, convenient half bathroom, and additional storage. Designed with both comfort and practicality in mind, the layout maximizes natural light and everyday usability. Upstairs, you’ll find 3 generously sized bedrooms, including a primary bedroom with a walk-in closet and a 5 piece ensuite. An additional 4 piece bathroom and upper level laundry add to the home’s convenience. The fully developed basement features a legal suite with a separate entrance, offering excellent income potential. The suite includes its own kitchen, family room, 2 bedrooms, a 4 piece bathroom, and in-suite laundry. A fantastic opportunity to own a new build with income potential in a well designed, Southlands modern home. (id:27476)

Property Highlights

MLS® Number
A2299596
Type
Single Family
Community Name
Southland
Ownership Type
Freehold
Land Size
2918.77 sqft|0-4,050 sqft
Parking Space Total
2

Building

Building Type
Duplex
Storeys
2.00
Square Footage
1764 sqft
Bathrooms Total
4
Bedrooms Above Ground
3
Bedrooms Total
5
Amenities
Park, Schools, Shopping
Exterior Finish
Vinyl siding
Fireplace Present
No
Basement Type
Full (Finished)
Basement Features
Suite
Building Heating Type
Forced air
Heating Fuel
Building Cooling Type
Central air conditioning

Location

Learn more about this property
Listing provided by:
ROYAL LEPAGE COMMUNITY REALTY
MLS® number:
A2299596
Agent:
Matt Teel
*Indicates required field
Name is required
Email is required
Please enter a valid phone number (e.g., 416-111-1111).