2016 30 Avenue, Nanton, Alberta T0L 1R0

Listed for:
$580,000
2 beds
2 baths
Listed 162 days ago
House for rent: 2016 30 Avenue, Nanton, Alberta T0L 1R0

View all 8 photos

Learn more about this property
Listing provided by:
RE/MAX Complete Realty
MLS® number:
A2243486
Agent:
Mackenzie Terrio
*Indicates required field
Name is required
Email is required
Please enter a valid phone number (e.g., 416-111-1111).

About

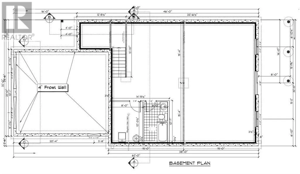
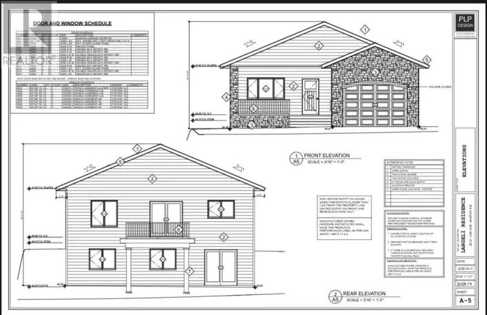
Welcome to another charming new build coming to the peaceful town of Nanton! This home with 1,200+ square feet of living space on the main floor will have 2 well sized bedrooms, 2 full bathrooms and an open concept living space with a fireplace. Thoughtfully designed with functionality in mind, this home features a bright and inviting main level that flows effortlessly into the kitchen and living spaces. This main floor is perfect for both everyday living and entertaining. The walkout basement has a rough-in for a third bathroom and an easy floor plan or be able turn into your ideal living space. Act quickly for the opportunity to choose the exact colours and finishings you want! (id:27476)

Property Highlights

MLS® Number
A2243486
Type
Single Family
Ownership Type
Freehold
Land Size
6500 sqft|4,051 - 7,250 sqft
Parking Space Total
4

Building

Building Type
House
Storeys
1.00
Square Footage
1280 sqft
Bathrooms Total
2
Bedrooms Above Ground
2
Bedrooms Total
2
Amenities
Schools, Shopping
Exterior Finish
Concrete
Fireplace Present
Yes
Basement Type
Full (Unfinished)
Basement Features
Building Heating Type
Forced air
Heating Fuel
Building Cooling Type
None

Location