200, 14 Crystalridge Drive, Okotoks, Alberta T1S 2C3

Listed for:
$599,900
0 beds
0 baths
Listed 65 days ago
Offices for rent: 200, 14 Crystalridge Drive, Okotoks, Alberta T1S 2C3

View all 22 photos

About

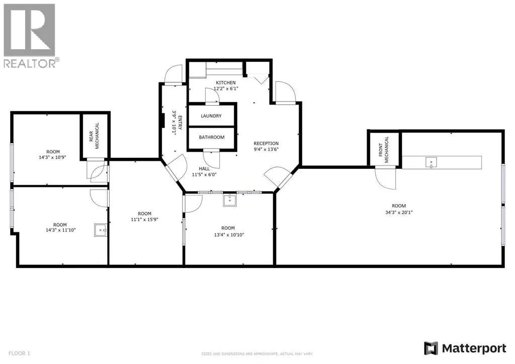
Fantastic opportunity to own half of the 2nd floor of this great commercial unit. This unit has lots of potential for a multitude of uses, at one time it was split into 2 tenants and could easily be split again if you wanted to have a smaller space for your business and rent out the other side. This unit is currently being used a spa and salon, please note the fixtures belong to the tenant and will be removed. This is a great location with lots of natural light, your own heating and cooling controls. There is a reception with a kitchen area and a washroom with tiled flooring (there is potential for a 2nd washroom but it is currently being used as the laundry). There is a huge room with large windows (this is currently used for the hairdressing stations), there are 3 private rooms and another area that would make a great shared space. The unit has modern paint colours and gorgeous flooring. There is additional storage space and an entrance to the back staircase. The building is well maintained and there is lots of parking for your customers. This is a great unit in a fabulous location! View 3D Tour. (id:27476)

Property Highlights

MLS® Number
A2273342
Type
Office
Community Name
Crystalridge
Maintenance Fee
817.77
Ownership Type
Condominium/Strata
Land Size
0.00|0-4,050 sqft

Building

Building Type
Offices
Square Footage
1639 sqft
Fireplace Present
No
Basement Type
Basement Features
Building Heating Type
Forced air
Heating Fuel
Natural gas
Building Cooling Type
Central air conditioning

Location

Learn more about this property
Listing provided by:
RE/MAX First
MLS® number:
A2273342
Agent:
Julie Parry
*Indicates required field
Name is required
Email is required
Please enter a valid phone number (e.g., 416-111-1111).