10118 106 Avenue, Peace River, Alberta T8S 1S3

Listed for:
$165,000
4 beds
2 baths
Listed 18 days ago
House for rent: 10118 106 Avenue, Peace River, Alberta T8S 1S3

View all 17 photos

Learn more about this property
Listing provided by:
RE/MAX Northern Realty
MLS® number:
A2268050
Agent:
Amber Marcoux
*Indicates required field
Name is required
Email is required
Please enter a valid phone number (e.g., 416-111-1111).

About

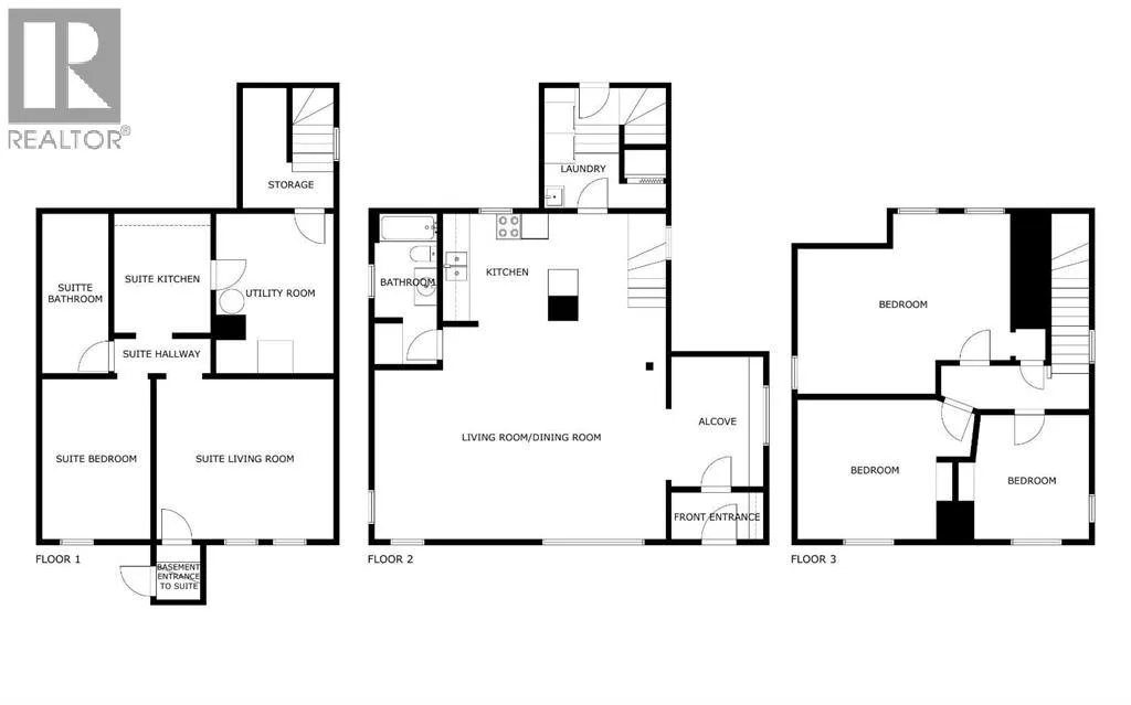
Discover this charming 1950s one and a half story home, nestled on two spacious lots. It features three cozy bedrooms upstairs, a main level bathroom, and an inviting open concept kitchen, living, and dining area filled with character. The partially developed basement would make a great suite or it could be added space for a large family, is nicely laid out with its own kitchen, bedroom, living room, and bathroom, ready for you to complete. There are also two driveways and a separate basement entrance. Additionally there is a versatile garage currently serving as a storage shed or workshop. Schedule a showing to take a look or check out the 360 virtual tour now available in the media section. Floor plans are available in the photos section. (id:27476)

Property Highlights

MLS® Number
A2268050
Type
Single Family
Community Name
South End
Ownership Type
Freehold
Land Size
8308 sqft|7,251 - 10,889 sqft
Parking Space Total
4

Building

Building Type
House
Storeys
1.50
Square Footage
1331 sqft
Bathrooms Total
2
Bedrooms Above Ground
3
Bedrooms Total
4
Amenities
Playground
Exterior Finish
Vinyl siding
Fireplace Present
No
Basement Type
Full (Partially finished)
Basement Features
Separate entrance, Walk out, Suite
Building Heating Type
Forced air
Heating Fuel
Natural gas
Building Cooling Type
None

Location

Community Spotlight: Homes For sale in Your Neighborhood