4418 53 Street, Rocky Mountain House, Alberta T4T 0C3

Listed for:
$479,900
3 beds
2 baths
Listed 35 days ago
House for rent: 4418 53 Street, Rocky Mountain House, Alberta T4T 0C3

View all 31 photos

Learn more about this property
Listing provided by:
RE/MAX real estate central alberta
MLS® number:
A2256709
Agent:
Andrew Russell
*Indicates required field
Name is required
Email is required
Please enter a valid phone number (e.g., 416-111-1111).

About

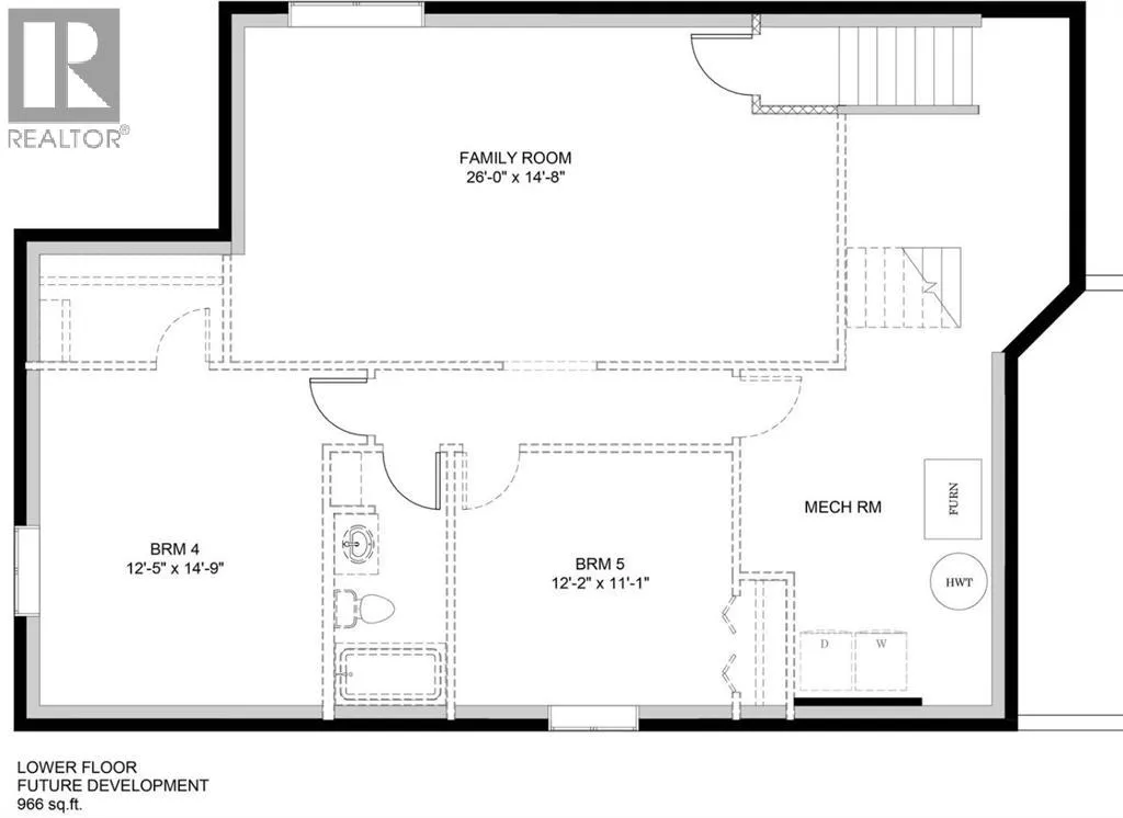
Be the first owner of this beautiful brand new build by Laebon Homes in Creekside! This 1,358 sq ft Montego floor plan offers 9’ main floor ceilings, low maintenance vinyl plank flooring, and modern finishes throughout. A spacious living and dining room area are open to a modern kitchen with raised cabinetry, quartz counter tops, stainless steel appliances, pantry, and an island with eating bar. The master suite features a private 4 pce ensuite and walk in closet, while two more nicely sized kids’ bedrooms share a 4 pce bathroom that completes the main floor. The attached garage is insulated, drywalled, and taped. If you need more space, the builder can complete the basement development for you, and allowances can also be provided for blinds, and a washer and dryer to make this a completely move in ready package. Front sod and rear topsoil are included in the price and will be completed as weather permits. 1 year builder warranty and 10 year Alberta New Home Warranty are included. Taxes have yet to be assessed. Immediate possession is available! (id:27476)

Property Highlights

MLS® Number
A2256709
Type
Single Family
Community Name
Creekside
Ownership Type
Freehold
Land Size
449.75 m2|4,051 - 7,250 sqft
Parking Space Total
4

Building

Building Type
House
Square Footage
1358 sqft
Bathrooms Total
2
Bedrooms Above Ground
3
Bedrooms Total
3
Amenities
Park, Playground
Exterior Finish
Concrete, Stone, Vinyl siding
Fireplace Present
No
Basement Type
Full (Unfinished)
Basement Features
Building Heating Type
Forced air
Heating Fuel
Natural gas
Building Cooling Type
None

Location